
Дизайнеры интерьера
0
Квартира в ЖК "Новая Звезда"
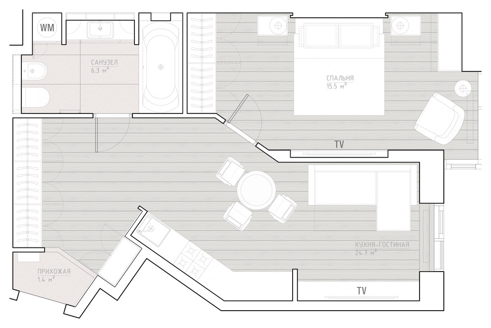
Вот такую милую и уютную планировку можно сделать из квартиры -малютки типа 2Е в 45 кв.м. . . Интерьер квартиры в целом решен лаконично, в современном минималистическом стиле, с элементами "отельной" тематики. Использованы мягкие и глубокие фактуры, прямые линии. . Безусловно важной составляющей гармоничного пространства является цвет. Хороший цвет создает теплоту и уют там, где это необходимо, остужает и успокаивает ум, настраивает на ощущение безопасности в собственном доме.
Другие фотографии в проекте
Вопросы к фото 0
Задайте вопрос
Вам ответят эксперты. Пришлем уведомление, когда вам ответят




