Квартира на улице Грибалевой

Другие фотографии в проекте Квартира в ЖК Life Лесная

Вопросы к фото 0

Задайте вопрос

Вам ответят эксперты. Пришлем уведомление, когда вам ответят

Санкт-Петербург

Aleksandra Kachko

Aleksandra Kachko

Архитекторы

Смотреть профиль

6

отзывов

5

Рейтинг

Квартира в ЖК Life Лесная

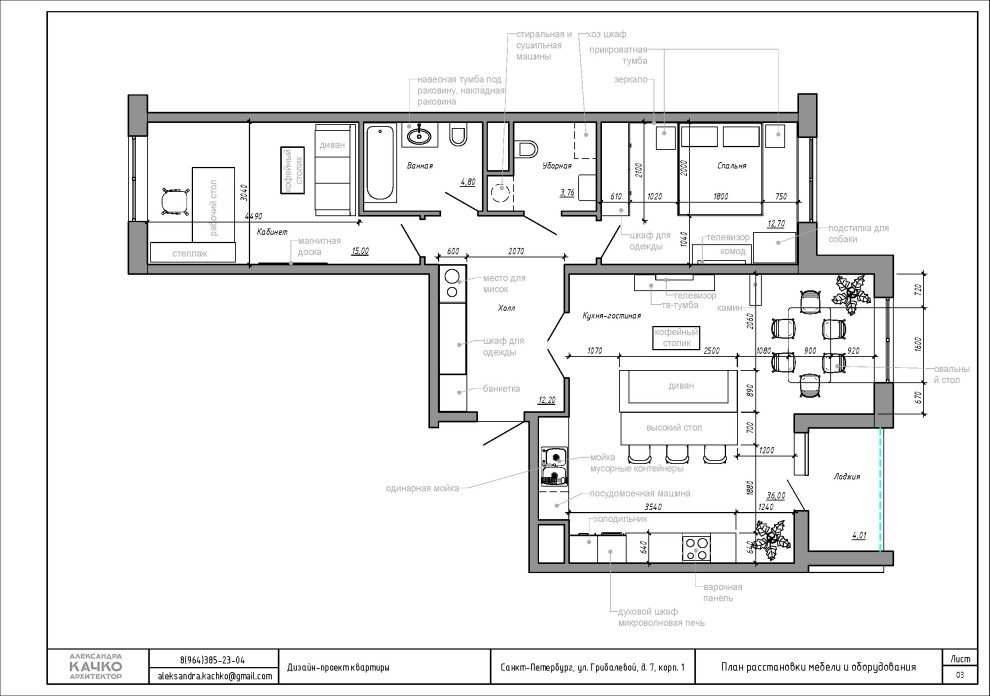
Дизайн проект двухкомнатной квартиры с обширной кухней-гостиной , площадью 98 кв.м выполнен в сдержанном современном стиле. . Изначально присутствовала отделка от застройщика. Все стены окрашены, организовано несколько цветовых акцентов в спальне и гостиной. . В гостиной организована тв-зона, акцентирована панно из шпонированных панелей и тонколистовой керамики. Там же в тумбу встроен биокамин. Обеденная зона в выступающей части комнаты. Кухня отделена от гостиной барной стойкой и диваном. . Сан. узлы отделаны заново крупноформатной керамикой под бетон, частично заменена сантехника.

Вопросы к фото 0