
Дизайнеры интерьера
5
·
10 отзывов
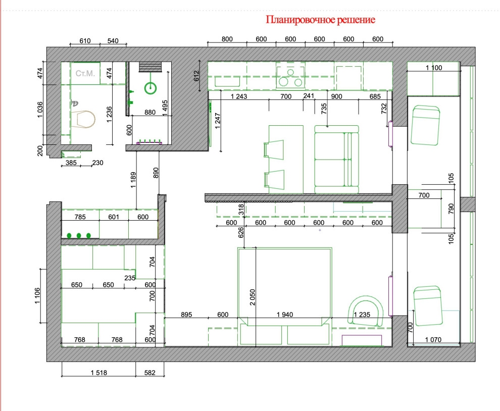
Квартира в ЖК Академический
Полы в призожей, на кухне и весь санузел выполнены из микроцемента, в спальне и лоджие инженерная доска. Теневые потолки из ГКЛ, на стенах ГКЛ или декоративные панели с дальнейшей покраской, плинтус в квартире скрытого монтажа. Рабочее место вынесено на лоджию без переноса систем отопления, обогрев за счет теплого пола
Другие фотографии в проекте
Вопросы к фото 0
Задайте вопрос
Вам ответят эксперты. Пришлем уведомление, когда вам ответят




