
Дизайнеры интерьера
4.97
·
58 отзывов
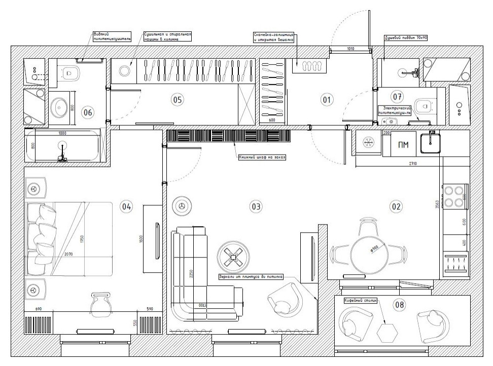
Квартира в Тушино для супружеской пары
Двухкомнатная квартира с длинным коридором преобразилась за счет превращения части коридора в гардеробную комнату. Благодаря этому в комнатах не осталось крупной корпусной мебели. Заказчики хотели интерьер в бежевых и коричневых оттенках, но в итоге согласились разбавить его тонкими цветными деталями.
Другие фотографии в проекте
Вопросы к фото 0
Задайте вопрос
Вам ответят эксперты. Пришлем уведомление, когда вам ответят
Бежевая нескучная квартира, Москва, Спальня, бежевый интерьер, нейтральный интерьер с яркими акцентами
Похожие фотографии

Дизайн трехкомнатной квартиры 74 кв.м
Строительная компания "Новая Москва"

Квартира серии п-44 в Братеево
Елизавета Матвейко

Стильный минимализм | Ленинский проспект | ЖК Квартал 38
Екатерина Хорева

ПРАЙМ ЭРА интерьера
ЭКО ГИПС

ПРАЙМ ЭРА интерьера
ЭКО ГИПС

Двухуровневая квартира на Таврической улице
Ксения Борисова

Квартира с китайскими мотивами
Александра Карасева

Квартира коллекционера
Марина Корнилова

КВАРТИРА ДЛЯ БОЛЬШОЙ СЕМЬИ НА МОСФИЛЬМОВСКОЙ
Екатерина Любимкина

Современный интерьер для програмиста
ГРАФИТ Студия современного дизайна

Экзотическая квартира в старом фонде
Андрей Кирнов

Экзотическая квартира в старом фонде
Андрей Кирнов




