
Дизайнеры интерьера
4.75
·
4 отзыва
Квартира в стиле Прованс
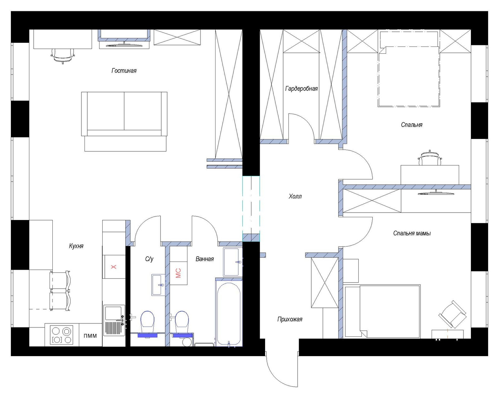
Дом, в котором находится квартира был построен пленными немцами в 40-х годах. Небольшой, двухэтажный, он уютно устроился во дворе, окружённом современным жильём. . Площадь квартиры составляет 88 кв.м. Она состоит как-бы из двух частей, разделённых несущей стеной. . Жильё предназначено для самой заказчицы-молодой женщины и её мамы. . Главной задачей было: предусмотреть максимальное количество мест для хранения и вписаться в небольшой бюджет. . После перепланировки удалось выделить место для гардеробной. Наполнение сделали из системы ИКЕА Пакс. Спальные комнаты получились небольшими, но функциональными. В одной из них кровать-трансформер решает вопрос свободного пространства, и на день превращается в простой по форме диванчик. Шкаф в гостиной имеет две вместительные выдвижные секции для книг, которые скрываются за зеркальным фасадом. . Зона кухни и гостиной разделена декоративной раздвижной перегородкой с матовыми стёклами. А зона ванной и с/у скрыта за дверями «невидимками». . . Портал в несущей стене было решено обрамить наличником и деревянными панелями. А так как сам проём ниже остальных проемов квартиры, над ним появился декоративный элемент, добавляющий ему «роста». . Ещё одной мечтой хозяйки был камин. Он занял центральное место в гостиной. Для доступа и обслуживания были сделаны зеркальные съемные панели, обрамляющие топку. . В каждой комнате присутствуют птички в том или ином предмете интерьера. Заказчица любит их всей душой. Покупает разный декор с их участием. . Мы называем этот интерьер «Прованс», который возник в процессе реализации, в начале пути проект был ближе к современной классике. Большая часть мебели была выполнена по эскизам в мастерской «Фабрика Ладыгина», это и задало тон интерьеру. . Множество светлых оттенков и оттенков зеленого делают интерьер свежим и легким. . Реализация заняла два с половиной года, так как проект был без авторского надзора, наполнение интерьера происходило поэтапно, по мере поступления бюджета. . Пол- массив дуба. В с/у керамогранит Codicer Heritage. В ванной плитка Peronda Provence. Фотограф Сергей Красюк. .
Другие фотографии в проекте
Вопросы к фото 0
Задайте вопрос
Вам ответят эксперты. Пришлем уведомление, когда вам ответят
Гостиная, Москва, Прованс, Традиционный, квартира в стиле прованс, спальня, французский стиль
Похожие фотографии

Apartments Neva Towers 1
Пример оригинального дизайна: гостиная комната среднего размера в современном стиле с бежевыми стенами, светлым паркетным полом, бежевым полом, многоуровневым потолком, панелями на части стены и акцентной стеной
Вадим Мартынов Екатерина Гатилова

Частная резиденция DRR
Свежая идея для дизайна: идея дизайна в современном стиле - отличное фото интерьера
Portner Architects

Вавилова 4
Стильный дизайн: гостиная комната в стиле неоклассика (современная классика) - последний тренд
Ира Носова

FESTIVAL FLAT
Пример оригинального дизайна: открытая, объединенная гостиная комната среднего размера, в белых тонах с отделкой деревом в современном стиле с белыми стенами, паркетным полом среднего тона, мультимедийным центром и коричневым полом
Екатерина

Гостиная
Пример оригинального дизайна: гостиная комната в современном стиле с коричневым диваном, паркетным полом среднего тона и потолком из вагонки без камина
Александра Протасова

Квартира ул Тверская
На фото: гостиная комната в стиле неоклассика (современная классика) с белыми стенами и многоуровневым потолком с
Олег Михайлов архитектор-дизайнер

Пентхаус в Краснодаре
На фото: идея дизайна в современном стиле с
Денис Мурый

Квартира в Палевском жилмассиве
Идея дизайна: открытая, объединенная гостиная комната среднего размера в скандинавском стиле с белыми стенами, полом из винила, коричневым полом и кирпичными стенами без телевизора
Дмитрий Дубровский

Зал
Источник вдохновения для домашнего уюта: гостиная комната в современном стиле с бежевыми стенами, светлым паркетным полом и бежевым полом
Дмитрий Галаганов

Квартира в ЖК "Василеостровский квартал"
Пример оригинального дизайна: гостиная комната в современном стиле с паркетным полом среднего тона и коричневым полом
Екатерина Савенко

Дом, умный дом(фотографии спальни)
Источник вдохновения для домашнего уюта: идея дизайна в современном стиле
Архитектурная студия Астар проект

Гостиная
Свежая идея для дизайна: маленькая открытая, объединенная гостиная комната в современном стиле с серыми стенами и серым полом без телевизора для на участке и в саду - отличное фото интерьера
Ольга Васильева




