
Дизайнеры интерьера
4.93
·
10 отзывов
Квартира в сталинке на Соколе для большой семьи
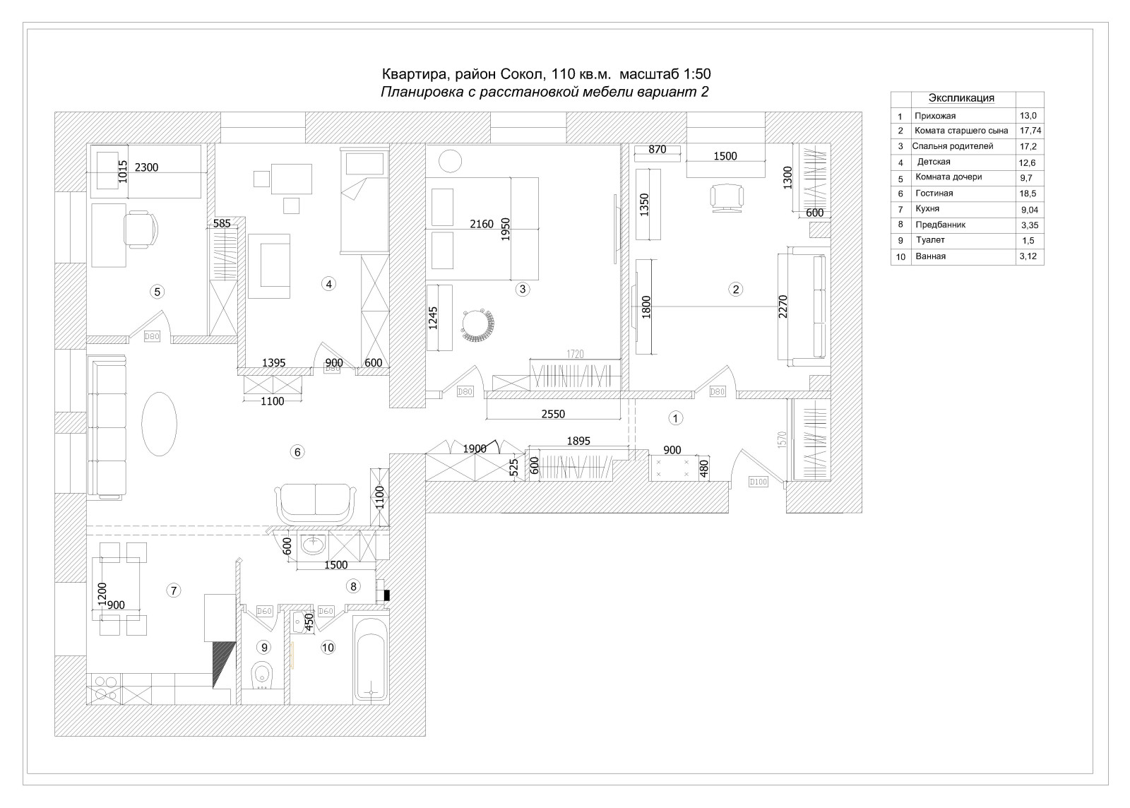
Семья заказчиков проживала в очень хорошей квартире в сталинском доме 1956 года постройки. Большая площадь, высокие потолки, много окон, но длинный узкий коридор, только один санузел, небольшая площадь и ремонт эпохи 90-х, слегка мрачноватый, в коричнево-бордовых тонах. К тому же семья ждала прибавления, поэтому нужно было выделить еще одну комнату для малыша. К счастью, площадь и количество окон это позволяли. В процессе перестройки выяснилось, однако, что хотя перегородки не являлись несущими, но над ними были балки - ригеля, несущие конструкции, так в новых детских комнатах появились балки под потолком. Чтобы из одной большой спальни сделать 2 небольших детских, пришлось похитрить с планировкой, немного отнять площадь от бывшей гостиной, и в спальне дочери сделать нишу, в которую вписали шкаф. В зоне санузла на части бывшего коридора устроили постирочную и там же разместили еще одну раковину, так в результате получилось полноценных 2 санузла, чтобы все 5 членов семьи не испытывали стресса в утренние часы. Кухня традиционно небольшого размера в сталинских домах, поэтому использовали максимально все возможности. Навесные шкафы до потолка, под окном углубили нишу, утеплили ее и поместили туда еще шкафчики. В прихожей и длинном узком коридоре сделали шкафы на заказ, благодаря чему удалось разместить и шкаф для одежды (раньше там была неудобная секция глубиной только 40 см). В итоге решили и эстетические задачи, и функциональные.
Другие фотографии в проекте
1 раз сохранено в статьи и альбомы идей:
Добавил(-а) в альбом: Ванная
Вопросы к фото 0
Задайте вопрос
Вам ответят эксперты. Пришлем уведомление, когда вам ответят




