
Дизайнеры интерьера
0
Квартира в современном стиле в жк "Аврора"
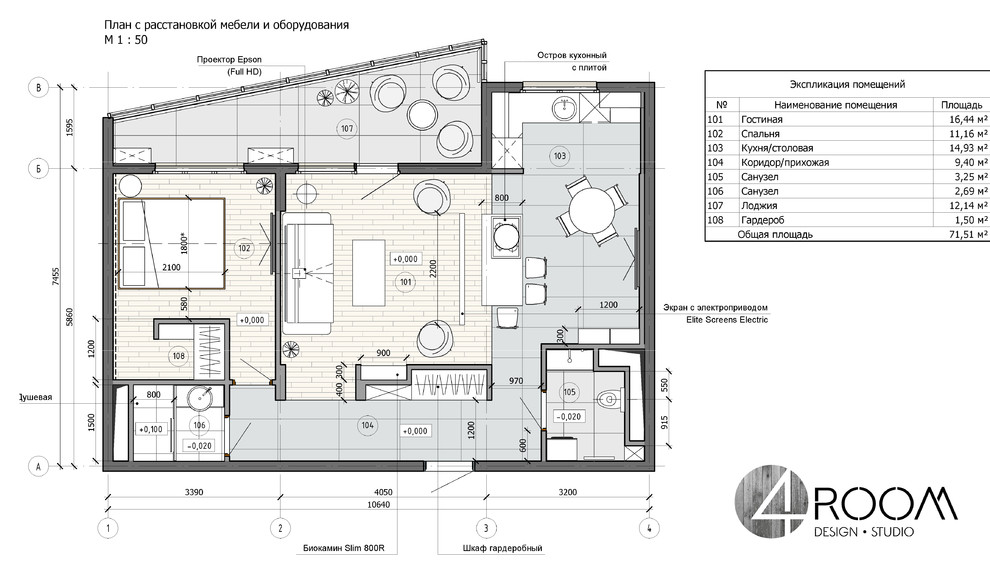
Планировочное решение квартиры, которое было заложено в данном проекте весьма специфично. Сразу три помещения были объединены в единое. Функциональным разделителем стала перегородка с гардеробной зоной со стороны коридора и декоративным биокамином в гостиной. Главным пожеланием Заказчика стала монохромность всего объема квартиры и близость к таким стилям как hi-tech и модерн. . Изюминкой интерьера стал домашний кинотеатр, включающий в себя Full HD-проектор и экран с электроприводом. Несмотря на использование темных оттенков в отделке, пространство квартиры получилосьочень уютными сбалансированным.
Другие фотографии в проекте
Вопросы к фото 0
Задайте вопрос
Вам ответят эксперты. Пришлем уведомление, когда вам ответят




