
Дизайнеры интерьера
4.73
·
15 отзывов
Квартира в современном стиле
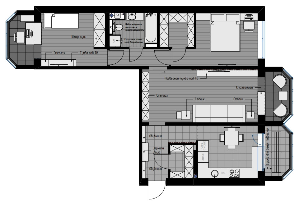
Каждый проект по-своему уникален, поэтому и стоимость реализации может значительно отличаться. На итоговую стоимость ремонта влияет много факторов: тип материала, сложность конструкций, заказные позиции и т.д. Поэтому, чтобы вам было проще ориентироваться и сформировать свой бюджет на ремонт, мы делимся с вами стоимостью реализованного объекта. . . Площадь квартиры: 82м.кв. . Количество комнат: 2 спальни, гостиная, кухня, холл, 2 гардеробных. . Санузел: совмещенный . Перепланировка незначительная: присоединение 2 лоджий, возведение перегородок для гардеробных комнат. . Потолки невысокие - 2,45м. . . Полный дизайн-проект с сопровождением: 229 600 руб. . . Черновые и чистовые работы: 1 560 000 руб. . • Декоративное окрашивание стен . • Декоративные рейки (лайтбрус) . • Деревянная отделка проемов на балконы (порталы со столешницами) . • Утепление 3 балконов . • Минимальное возведение стен (отсутствие перепланировки) . • Использование бюджетной инженерной сантехники (полипропилен) . • Простая схема освещения . • Простая конструкция потолков . . Черновые материалы: 680 000 руб. . • Гипсокартон Knauf влагостойкий . • Метало профиль Knauf . • Штукатурные смеси, Knauf rotband, Knauf fugen . • Корейская Шпаклевка Terraco . • Стеклохолст 40гр.кв м . • Клей для плитки Ceresit . • Эпоксидная затирка для плитки Kerakoll . . Чистовые материалы: 850 000 руб. . • Двери межкомнатные (5шт) . • Входная дверь . • Потолки натяжные матовые . • Инженерная доска . • Краска настенная Tikkurila . • Фотообои . • Плинтус дюрополимер под покраску . • Керамогранит (пол /стены) . • Деревянные рейки (лайтбрус) . • Порталы для проемов на балкон . • Зеркала . . Чистовое оборудование: 390 000 руб. . • Розетки/выключатели/терморегуляторы теплого пола Werkel . • Светильники Donolux, LightStar . (точечные светодиодные, люстры, торшер, настольная лампа) . • Радиаторы отопления Royal Thermo PianoForte . • Сантехника в ванную Grohe . . Мебель: 1 630 000 руб. . • Мебель в прихожую ИКЕА . • Кухня + столешница иск.камень . • Обеденная группа . • Стеллаж с камином, тумба под ТВ . • Диван со спальным местом . • Столики ИКЕА+ кресла . • Кровать 2 спальная с подъемным механизмом . • Тумбы прикроватные . • Мебель в детской ИКЕА . • Шкаф купе (3 двери с зеркалом, ARISTO) . • Зеркало гримерное . • Мебель в санузел . • 2 гардеробные . . . Бытовая техника для кухни: 215 000 руб. . • Холодильник отдельностоящий . • Духовой шкаф и СВЧ встраиваемые . • Посудомоечная машина . • Варочная панель . • Вытяжка . . ИТОГО: 5 554 600 руб.
Другие фотографии в проекте
Вопросы к фото 0
Задайте вопрос
Вам ответят эксперты. Пришлем уведомление, когда вам ответят




