
Архитекторы
5
·
10 отзывов
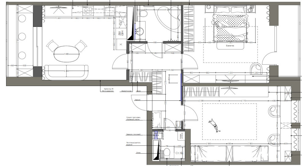
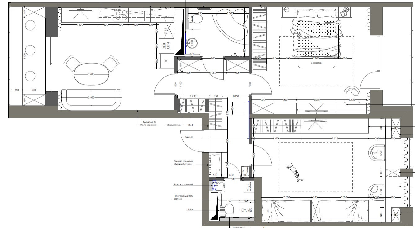
Квартира в Санкт-Петербурге.91м2.
Квартира-вторичка,площадью 90м2, расположенная в Санкт-Петербурге. . Заказчики-семейная пара с двумя детьми(мальчики 8 и 16 лет). . Мы сделали минимальную перепланировку, выровняли стены в прихожей и дверные проёмы, почти везде оставили отштукатуренный потолок и сделали большое кол-во осветительных приборов(пожелание заказчиков). . По детской комнате был референс, который родители согласовали с детьми, и мы могли лишь немного изменить и адаптировали его к нашему проекту. . Так же важным пожеланием была черная , минималистичная кухня совмещенная с зоной тв и контрастная ей,светлая спальню. . В итоге получилась светлая квартира, с черными, графичными деталями и яркими акцентами.
Другие фотографии в проекте
Вопросы к фото 0
Задайте вопрос
Вам ответят эксперты. Пришлем уведомление, когда вам ответят




