
Дизайнеры интерьера
5
·
10 отзывов
Квартира в Минске
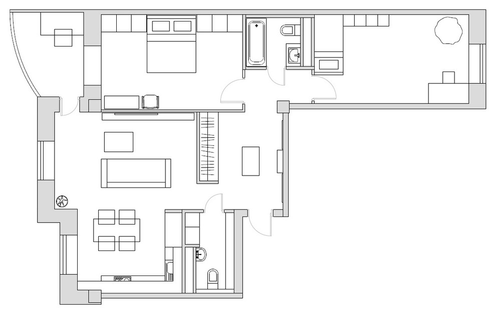
Интерьер этой квартиры я создавала для своей сестры. Правда, на старте ремонта семья состояла из мамы, папы и шестилетнего сына. Однако через некоторое время в доме появилась маленькая и шумная собачка, а вскоре в семье родилась дочь. . Все активные, непоседливые и любящие движение. . Сестра во время декрета попробовала себя в роли флориста, стилиста и даже немного кондитера, поэтому интерьер хотелось сделать динамичным, а источниками вдохновения я выбрала цветы и моду.
Вопросы к фото 0
Задайте вопрос
Вам ответят эксперты. Пришлем уведомление, когда вам ответят