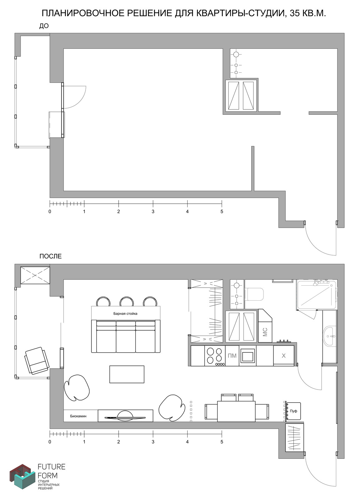
Квартира-студия, ЖК "Юнтолово".

Другие фотографии в проекте Квартира-студия, ЖК "Юнтолово".

Квартира-студия, ЖК "Юнтолово".
Квартира-студия, ЖК "Юнтолово". В процессе работы.
Квартира-студия, ЖК "Юнтолово". В процессе работы.
Квартира-студия, ЖК "Юнтолово". В процессе работы.
Квартира-студия, ЖК "Юнтолово". В процессе работы.
Квартира-студия, ЖК "Юнтолово". В процессе работы.
Квартира-студия, ЖК "Юнтолово" c элементами Лофт.

Вопросы к фото 0

Задайте вопрос

Вам ответят эксперты. Пришлем уведомление, когда вам ответят

Санкт-Петербург