
Архитекторы
0
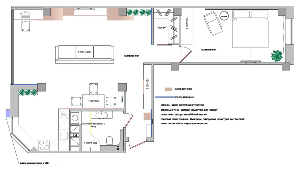
квартира студия, г. Екатеринбург
фотограф Александр Черепанов
Другие фотографии в проекте
2 раза сохранено в статьи и альбомы идей:
Добавил(-а) в альбом: Идеи пользователя bainovanata16
Вопросы к фото 0
Задайте вопрос
Вам ответят эксперты. Пришлем уведомление, когда вам ответят
Екатеринбург, Контемпорари, Прихожая, глубина пространства, зелень в интерьере, квартира-студия, минимализм, натуральные материалы, открытая планировка, стекло, футуризм
Похожие фотографии

Flora частный дом 120 кв.м
Светлана/Евгений Сапрыкины "Студия Строчка"

Современная однокомнатная квартира (34 кв.м) в Санкт-Петербурге
Алина Игошина

Квартира 150 м2 | ЖК "Сердце столицы"
Дизайн интерьера | Ремонт | DE CLUB

ЖК Ривер парк
T-home Boutique

ЖК Кранц Престиж для посуточной аренды
Анна Просвирнина

ЖК Соколова 68 «Классическая элегантность: атмосфера уюта в интерьере»
Анна Иванова

2-комнатная квартира 60 кв.м., Сокольники
Марианна Мальцева

Архитектура спокойствия
Татьяна Черкашина

Дизайн-проект квартиры в ЖК «Level Бауманская» в стиле ар-деко
Студия дизайна Artum

ЖК «Скандинавия» Квартира с интегрированной мебелью
Point Form

ВЕЛЛТОН 70
Hatka Build





