logo
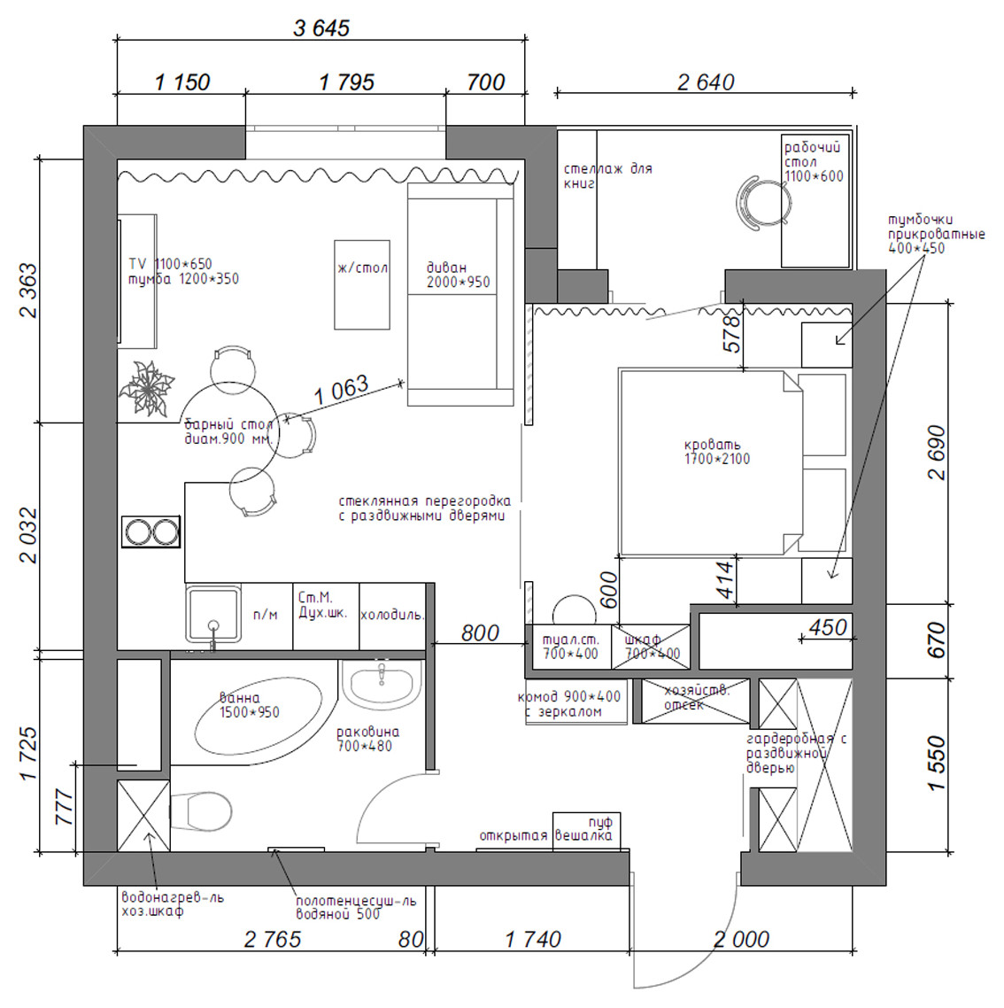
квартира-студия 38м2

Другие фотографии в проекте квартира-студия 38м2

Вопросы к фото 0

Задайте вопрос

Вам ответят эксперты. Пришлем уведомление, когда вам ответят

Контемпорари, маленькая спальня, мягкие панели в изголовье, раздвижные перегородки лофт, серые стены, спальня

Елена Комарова

Елена Комарова

Дизайнеры интерьера

Смотреть профиль

4

отзыва

5

Рейтинг

квартира-студия 38м2

Расстановка мебели в квартире

Вопросы к фото 0