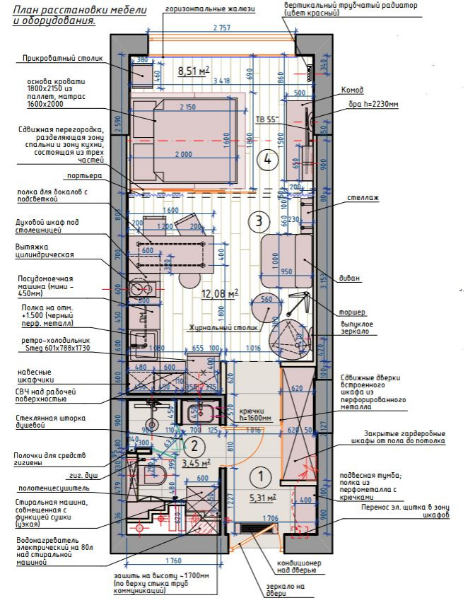
Квартира-студия 32 кв.м. в ЖК Хэдлайнер

Другие фотографии в проекте Квартира-студия 32 кв.м. в ЖК Хэдлайнер. Проект

Вопросы к фото 0

Задайте вопрос

Вам ответят эксперты. Пришлем уведомление, когда вам ответят

Индустриальный, Москва, дизайн интерьера студии, квартира студия, кожаное кресло, красная дверь в ванную, маленькая квартира, мебель из паллет, первая квартира, план квартиры студии, стильная квартира, темный интерьер, эпатажный дизайн интерьера, яркий дизайн

Александр и Ирина Кутенковы

Александр и Ирина Кутенковы

Дизайнеры интерьера

Смотреть профиль

23

отзыва

5

Рейтинг

Квартира-студия 32 кв.м. в ЖК Хэдлайнер. Проект

Этот интерьер – пример того, как даже небольшую квартиру можно превратить в стильное и харизматичное пространство. Дизайн выдержан в индустриальной эстетике с элементами поп-арта и винтажными деталями. Квартира представляет собой открытое пространство, где функциональные зоны объединены, но при этом каждая имеет свой характер: кухня с барной стойкой, жилая зона с акцентными постерами и винилом, спальня за стеклянной перегородкой и компактная гардеробная. Брутальный, но уютный, лаконичный, но с характером – он идеально подходит для молодой Хозяйки, ценящей свободу, креатив и яркие эмоции.

Вопросы к фото 0