
Дизайнеры интерьера
4.83
·
10 отзывов
Квартира семейной пары
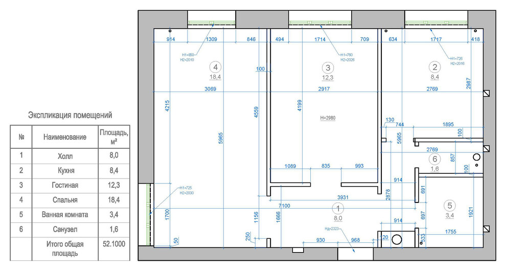
Площадь - 54 м2. . В задачи этапа перепланировки входило необходимость предусмотреть гардероб и единую зону кухня-столовая-гостиная. Несмотря на существующие ограничения, итоговое планировочное решение было согласовано в надзорных органах. Только после этого началась работа над дизайном интерьера.
Другие фотографии в проекте
Вопросы к фото 0
Задайте вопрос
Вам ответят эксперты. Пришлем уведомление, когда вам ответят




