
Дизайнеры интерьера
5
·
1 отзыв
Квартира с системой "Умный дом"
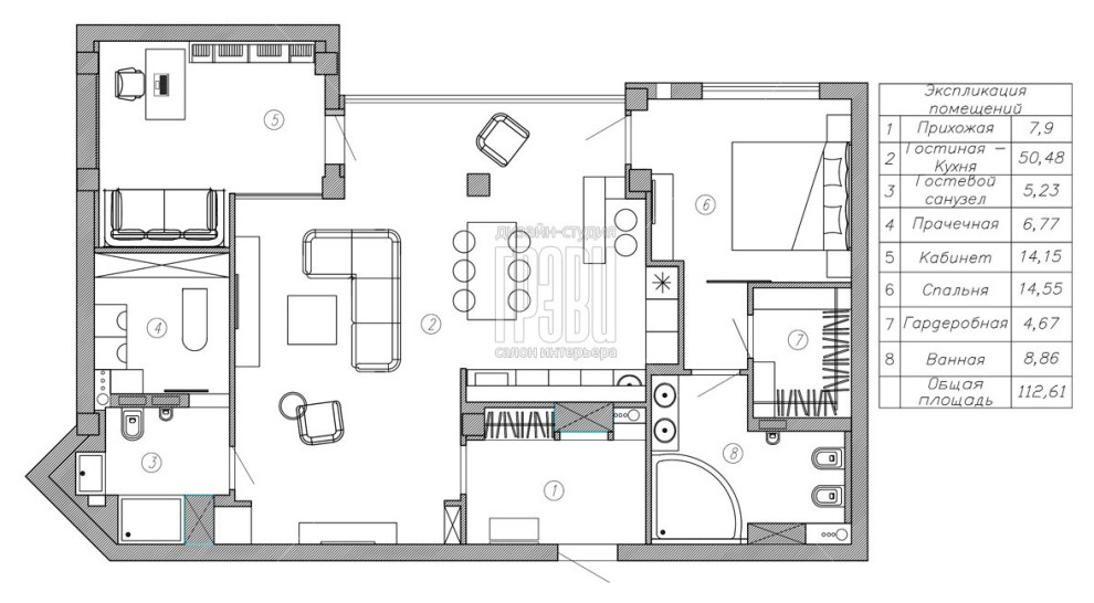
Представляем разработанный и реализованный проект квартиры, площадью 112,6 кв.м, оборудованной системой «Умный дом». . Задача, поставленная заказчиками – сделать практичный, минималистичный интерьер с использованием новых технологий. . Команде дизайнеров студии ГРЭВИ удалось создать современный многофункциональный, но при этом не перегруженный интерьер. . На стене прихожей были размещены встроенные в ниши небольшие шкафчики из дерева, покрытые сусальным серебром. . Эти шкафчики, помимо символического отображения электронно-кнопочной панели «Умный дом», несут в себе и функциональные задачи, являясь скрытой системой хранения всевозможных мелочей – ключей от машины, обувных щеток и т.д. . Для покраски стен входной зоны мы использовали краску Little Greene. Покрытие пола - итальянская плитка FAP CERAMICHE. Зеркало и скамеечка от бренда Porade. Часы - Vitra. Также в прихожей была установлена итальянская стеклянная межкомнатная дверь премиум класса от фабрики Longhi. . Стильная и многофункциональная кухня с большим количеством встроенной бытовой техники - от немецкого бренда Nobilia. . Благодаря лаконичным и элегантным формам кухни, совмещенной со столовой, нам удалось гармонично соединить это пространство с гостиной. . В проекте было применено несколько оригинальных решений, которые позволили визуально увеличить помещение. . Например, на площади 65кв.м. необходимо было создать 3 основные комнаты, находящиеся рядом – гостиную, объединенную с кухней и столовой, а также рабочий кабинет. . Задачу усложняло то, что в заданном пространстве было всего 2️ окна - одно большое панорамное, другое обычное, стандартных размеров. В итоге мы сделали в кабинете внутреннее окно с видом на гостиную и нам удалось решить проблему дневного освещения этой комнаты. . А в гостиной, напротив центральной части витражного окна, на несущей колонне была сделана отделка из сатинированного зеркала. Такую же отделку, только с фацетом, мы использовали для облицовки большой стены напротив витражного окна. Благодаря чему пространство стало более объемное, создавая ощущение, что за этой декорированной стеной имеется продолжение комнаты. . В отделке стен, и частично потолков комнат здесь были использованы деревянные панели со шпоном ореха, благодаря чему интерьер стал мягче и уютнее. . Помимо авторской разработки входной зоны с системой скрытого хранения вещей, также в этом интерьере есть еще несколько моих оригинальных решений. . Для ванной комнаты (8,86 кв.м.) и гостевого с/у (5,23 кв.м.) по были созданы тумбы цвета орех под раковины бренда премиальной сантехники Villeroy & Boch. . А для спальни было разработано и заказано в мебельном ателье изголовье кровати из натуральной кожи. . Обои с оригинальным геометрическим рисунком были напечатаны на фабрике ID Wall, по эскизам художника студии ГРЭВИ. . Сдержанный и элегантный интерьер спальни был поддержан стильной мебелью от бренда Christine Krönke. . Гардеробная комната (4,67кв.м.) от итальянского бренда Sangiacomo, как и ванная хозяев квартиры, располагается за стеклянной раздвижной дверью в спальне. . Пол в квартире выполнен из эксклюзивной массивной доски американского бренда Lewis & Mark, с уникальной технологией ручного старения древесины. . Освещение – немецкой компании SLV. . А благодаря системе «Умный дом», в этой квартире любая техника и процессы могут контролироваться с телефона, планшета или пульта управления, а двери могут открываться по отпечатку пальца. . Во всех помещениях здесь предусмотрена система контроля датчиков отопления и кондиционирования, которую можно дистанционно настраивать, даже не находясь в этот момент в квартире. . Ну и конечно, тут продуманы различные сценарии освещения во всех комнатах, в зависимости от времени суток, а также возможность трансляции видео, музыки и включение будильника в нужное время с утра.
Другие фотографии в проекте
Вопросы к фото 0
Задайте вопрос
Вам ответят эксперты. Пришлем уведомление, когда вам ответят




