
Дизайнеры интерьера
5
·
10 отзывов
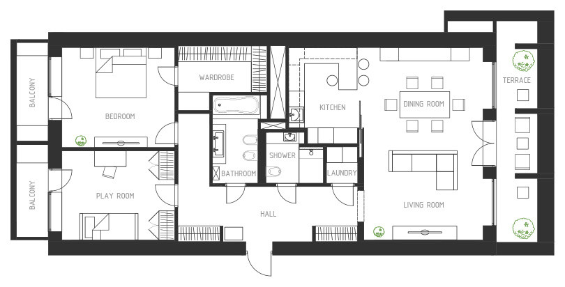
Квартира на Верхней Масловке
Интерьер квартиры в современном стиле для молодой семьи, общей площадью 110 квадратных метров. Помещение квартиры расположено в новом строении, что позволило планировать пространство практически без ограничений. Гостиная совмещена с кухней-столовой, в прихожей предусмотрены встроенные шкафы, в спальне вместительная гардеробная. Ванная комната и душевая расположены отдельно. В композиции интерьера большое внимание было уделено сочетанию простых геометрических форм и освещению, как естественному, так и искусственному. Окна гостиной выходят на террасу, поэтому было принято решение визуально совместить оба пространства, за счёт увеличения оконных проёмов до уровня пола. В отделке помещений использованы преимущественно натуральные материалы, гамма выдержана в тёплых тонах. Стены жилых помещений решены при помощи декоративной штукатурки с ярко выраженной текстурой, на полу паркет натуральных оттенков и керамогранит. Современная мебель, осветительные приборы и декор заполняют пространство, достойно завершая композицию интерьера.
Другие фотографии в проекте
Вопросы к фото 1
Дмитрий
9 л.
Задайте вопрос
Вам ответят эксперты. Пришлем уведомление, когда вам ответят





Ксения
9 л.
Площадь