Квартира на ул. Мясницкая

Другие фотографии в проекте Квартира на ул. Мясницкая

Вопросы к фото 0

Задайте вопрос

Вам ответят эксперты. Пришлем уведомление, когда вам ответят

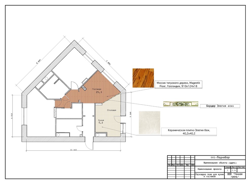
Москва, План возводимых и сносимых стен, План выключателей, План переключателей, План полов, План потолка, группа света, дизайн проект, план расстановки мебели

Юлия Сорокина

Юлия Сорокина

Дизайнеры интерьера

Смотреть профиль

0

отзывов

0

Рейтинг

Квартира на ул. Мясницкая

Юлия Колесникова

Вопросы к фото 0