logo
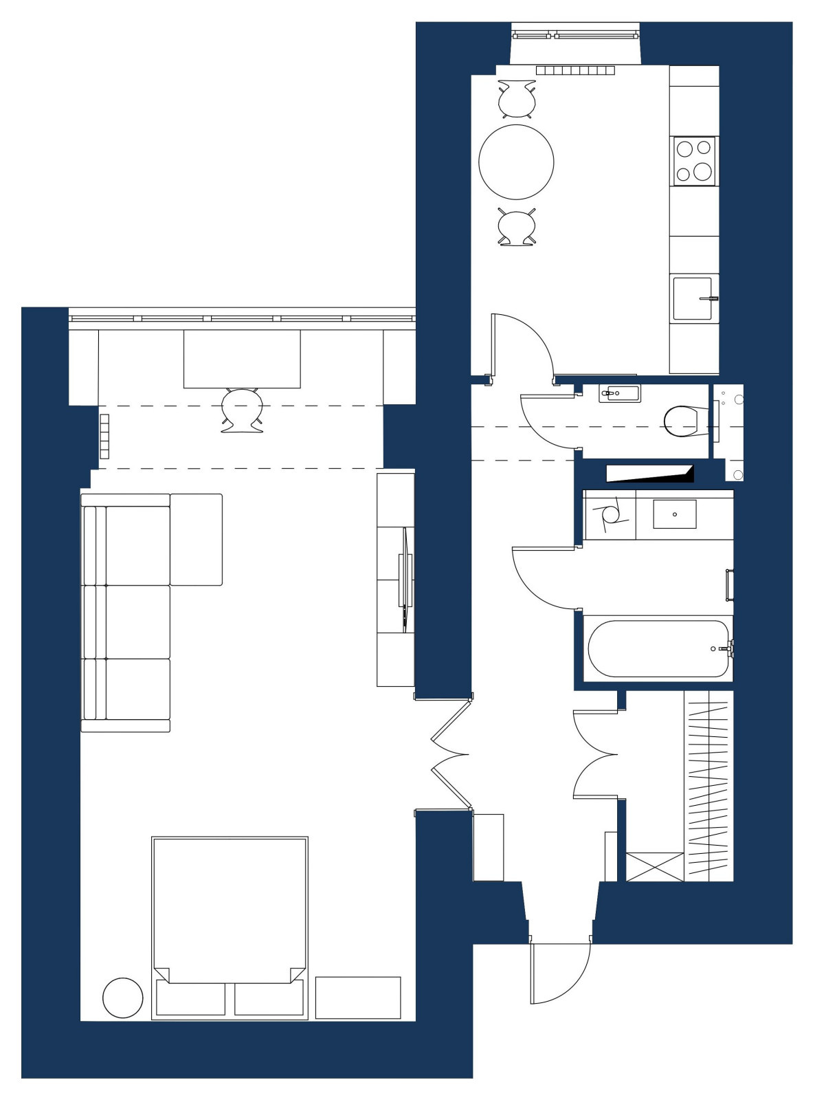
Квартира на Малой Грузинской

Другие фотографии в проекте Квартира на Малой Грузинской

Вопросы к фото 0

Задайте вопрос

Вам ответят эксперты. Пришлем уведомление, когда вам ответят

Контемпорари, Москва, Французская елка, белый, ванная, гостиная, гостиная-спальня, кухня, минимализм, однокомнатная квартира, паркет елка, прихожая, рабочее место, раздельный санузел, серый, синяя кухня, современный стиль, спальня, туалет