logo
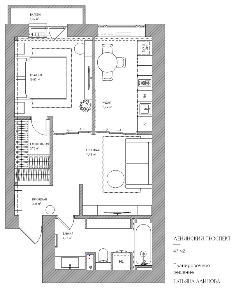
Квартира на Ленинском пр.

Другие фотографии в проекте Квартира на Ленинском пр.

Квартира на Ленинском пр.
Квартира на Ленинском пр.
Квартира на Ленинском пр.
Квартира на Ленинском пр.
Квартира на Ленинском пр.

Вопросы к фото 0

Задайте вопрос

Вам ответят эксперты. Пришлем уведомление, когда вам ответят