Квартира на Кисловском

Другие фотографии в проекте Квартира на Кисловском

Вопросы к фото 0

Задайте вопрос

Вам ответят эксперты. Пришлем уведомление, когда вам ответят

Контемпорари, бронза, ваннаякомната, гостевойсанузел, гостинная, детская, камин, кухня, мастерспальня, мрамор, планировка, санузел, спальня, шпон

Yulia Eydinova

Yulia Eydinova

Дизайнеры интерьера

Смотреть профиль

0

отзывов

0

Рейтинг

Квартира на Кисловском

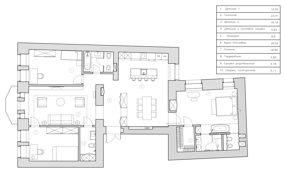
Мы с Козловой Еленой разработали эскизный проект реконструкции квартиры в Кисловском переулке. Генеральной идеей интерьера общих зон является перетекание одного помещения в другое. Это было реализовано использованием одних и тех же материалов и удобной продуманной планировкой. Приватные зоны так же выполнены в идентичных материалах.. При проектировании мастер-спальни мы сделали ее максимально удобной для хозяев. Развели зоны туалета и душевой в разные помещения, чтобы их можно было использовать независимо друг от друга. А центром композиции спальни мы сделали отдельно стоящую ванну в бронзовом обрамлении, подсвеченную мягким светом. Интерьер квартиры построен на контрасте светлого и темного, который исполнен текстильными обоями, шпоном дерева и темной бронзой. Сочетание дорогих материалов и роскошной мебели создает атмосферу благополучия и богатства. .

Вопросы к фото 0