
Дизайнеры интерьера
0
Квартира маленькая, холостяцкая с кабинетом и «дачной» лоджией
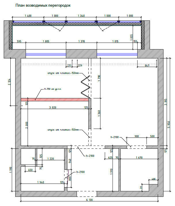
Замечательно было бы полностью убрать перегородку между спальней и кухней, но это было не только не позволительно, но более того, требовалось туда же добавить выгороженное рабочее место – кабинет. В итоге, бывшая кладовая подросла и превратилась в гардеробную, спальня осталась на своем месте с окном и двуспальной кроватью, санузел несколько вырос и «наполз» на территорию кухни, а сама кухня отдала свою часть с естественным уличным освещением столь желанному кабинету.
Другие фотографии в проекте
Вопросы к фото 0
Задайте вопрос
Вам ответят эксперты. Пришлем уведомление, когда вам ответят




