
Архитекторы
5
·
10 отзывов
Квартира "Little M"
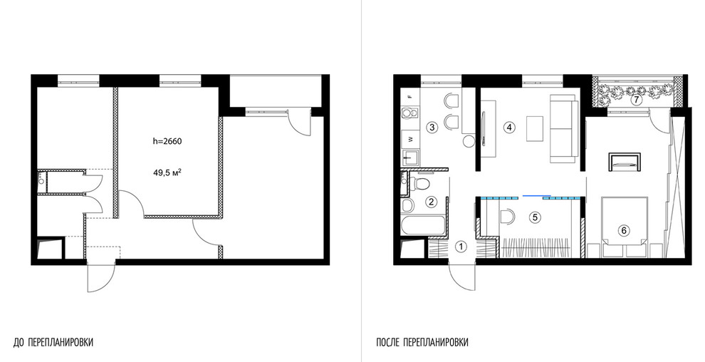
Проект 2011 года. Москва. . Площадь: 50 метров. . . Эту небольшую квартиру мы сделали "под ключ" менее чем за полгода с начала работы над проектом, полностью отказавшись от заказных материалов и мебели, используя то, что есть в Москве в наличии. Кваритра предназначена для активной взрослой женщины, которая живет одна. . Чтобы стандартная "двушка" соотвествовала всем требованиям хозяйки, мы сделали перепланировку. Хозяйка работает в сфере красоты, часто принимая клиентов у себя дома, для этих нужд мы предусмотрели кабинет, где можно легко разместить массажный стол и оборудование. В интерьере мы использовали много серого, который разбавили желтым и розовым, чтобы создать впечатление зрелости и инфантильности одновременно.
Другие фотографии в проекте
Вопросы к фото 0
Задайте вопрос
Вам ответят эксперты. Пришлем уведомление, когда вам ответят




