
Дизайнеры интерьера
5
·
10 отзывов
Квартира для временного проживания
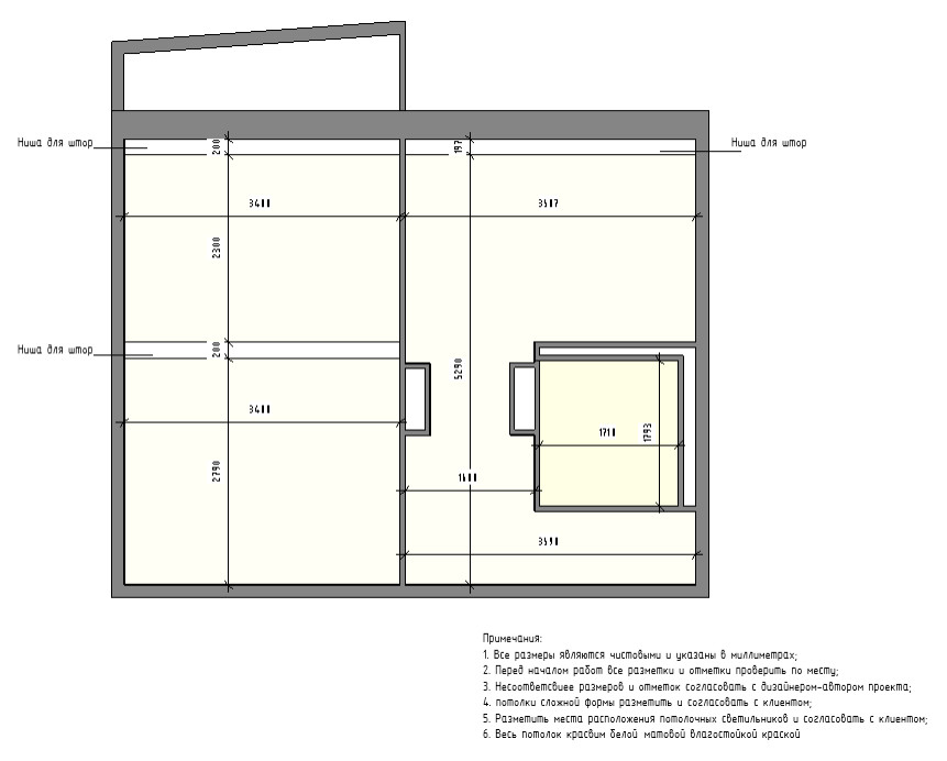
План потолка
Другие фотографии в проекте
Вопросы к фото 0
Задайте вопрос
Вам ответят эксперты. Пришлем уведомление, когда вам ответят

Дизайнеры интерьера
5
·
10 отзывов
План потолка
Другие фотографии в проекте
Вам ответят эксперты. Пришлем уведомление, когда вам ответят