
Архитекторы
5
·
10 отзывов
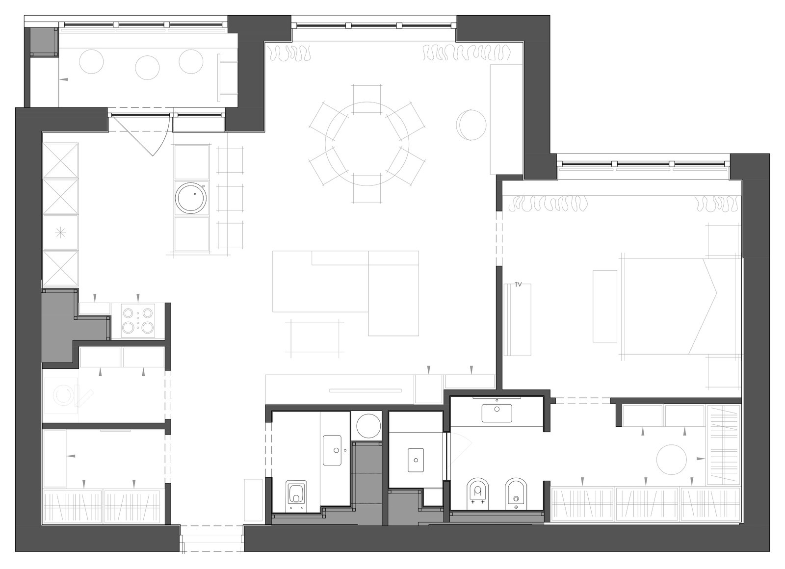
Квартира для студента
Квартира в жилом комплексе «Рублевские огни» на Западе Москвы была выбрана во многом из-за красивых видов, которые открываются с 22 этажа. Она стала подарком родителей для сына-студента — первым отдельным жильем молодого человека, началом самостоятельной жизни. . . Архитектор: Тимур Шарипов . Подбор мебели: Ольга Истомина . Светодизайнер: Сергей Назаров . Фото: Сергей Красюк . Этот проект был опубликован на интернет-портале Интерьер + Дизайн
Другие фотографии в проекте
Вопросы к фото 1
Тимур Шарипов
7 л.
Задайте вопрос
Вам ответят эксперты. Пришлем уведомление, когда вам ответят
$$$, nightstand, Ковролин, Контемпорари, Мастер, Минималистичные пространства, Москва, Наличник, Серый, Спальня, Средний, аут, блэк, бра, гардеробная, журналы, карниз, керамогранит, классическая, ковролин, комод, подвесные светильники, подоконник, подушки, портал, современная, современная классика, спальня, тумбочка, фотография, чтение
Похожие фотографии

Квартира как люкс в отеле
На фото: хозяйская спальня среднего размера в современном стиле с серыми стенами, ковровым покрытием, серым полом, панелями на части стены и акцентной стеной с
Александр и Ирина Кутенковы

Квартира как люкс в отеле
Пример оригинального дизайна: хозяйская спальня среднего размера в современном стиле с серыми стенами, ковровым покрытием, серым полом, панелями на части стены и акцентной стеной
Александр и Ирина Кутенковы

Квартира как люкс в отеле
Свежая идея для дизайна: хозяйская спальня среднего размера в современном стиле с серыми стенами, ковровым покрытием, серым полом, панелями на части стены и акцентной стеной - отличное фото интерьера
Александр и Ирина Кутенковы

Квартира как люкс в отеле
Стильный дизайн: хозяйская спальня среднего размера в современном стиле с серыми стенами, ковровым покрытием, серым полом, панелями на части стены и акцентной стеной - последний тренд
Александр и Ирина Кутенковы

Квартира как люкс в отеле
Пример оригинального дизайна: хозяйская спальня среднего размера в современном стиле с серыми стенами, ковровым покрытием, серым полом, панелями на части стены и акцентной стеной
Александр и Ирина Кутенковы

Квартира как люкс в отеле
Свежая идея для дизайна: хозяйская спальня среднего размера в современном стиле с серыми стенами, ковровым покрытием, серым полом, панелями на части стены и акцентной стеной - отличное фото интерьера
Александр и Ирина Кутенковы

Квартира как люкс в отеле
Стильный дизайн: хозяйская спальня среднего размера в современном стиле с серыми стенами, ковровым покрытием, серым полом, панелями на части стены и акцентной стеной - последний тренд
Александр и Ирина Кутенковы

Квартира как люкс в отеле
Пример оригинального дизайна: хозяйская спальня среднего размера в современном стиле с серыми стенами, ковровым покрытием, серым полом, панелями на части стены и акцентной стеной
Александр и Ирина Кутенковы

Квартира как люкс в отеле
Источник вдохновения для домашнего уюта: хозяйская спальня среднего размера в современном стиле с серыми стенами, ковровым покрытием, серым полом, панелями на части стены и акцентной стеной
Александр и Ирина Кутенковы

Квартира как люкс в отеле
Свежая идея для дизайна: хозяйская спальня среднего размера в современном стиле с серыми стенами, ковровым покрытием, серым полом, панелями на части стены и акцентной стеной - отличное фото интерьера
Александр и Ирина Кутенковы

Квартира как люкс в отеле
Идея дизайна: хозяйская спальня среднего размера в современном стиле с серыми стенами, ковровым покрытием, серым полом, панелями на части стены и акцентной стеной
Александр и Ирина Кутенковы

Квартира как люкс в отеле
Стильный дизайн: хозяйская спальня среднего размера в современном стиле с серыми стенами, ковровым покрытием, серым полом, панелями на части стены и акцентной стеной - последний тренд
Александр и Ирина Кутенковы





almira217
7 л.
скажите пожалуйста, какие материалы использованы для подоконника?