logo
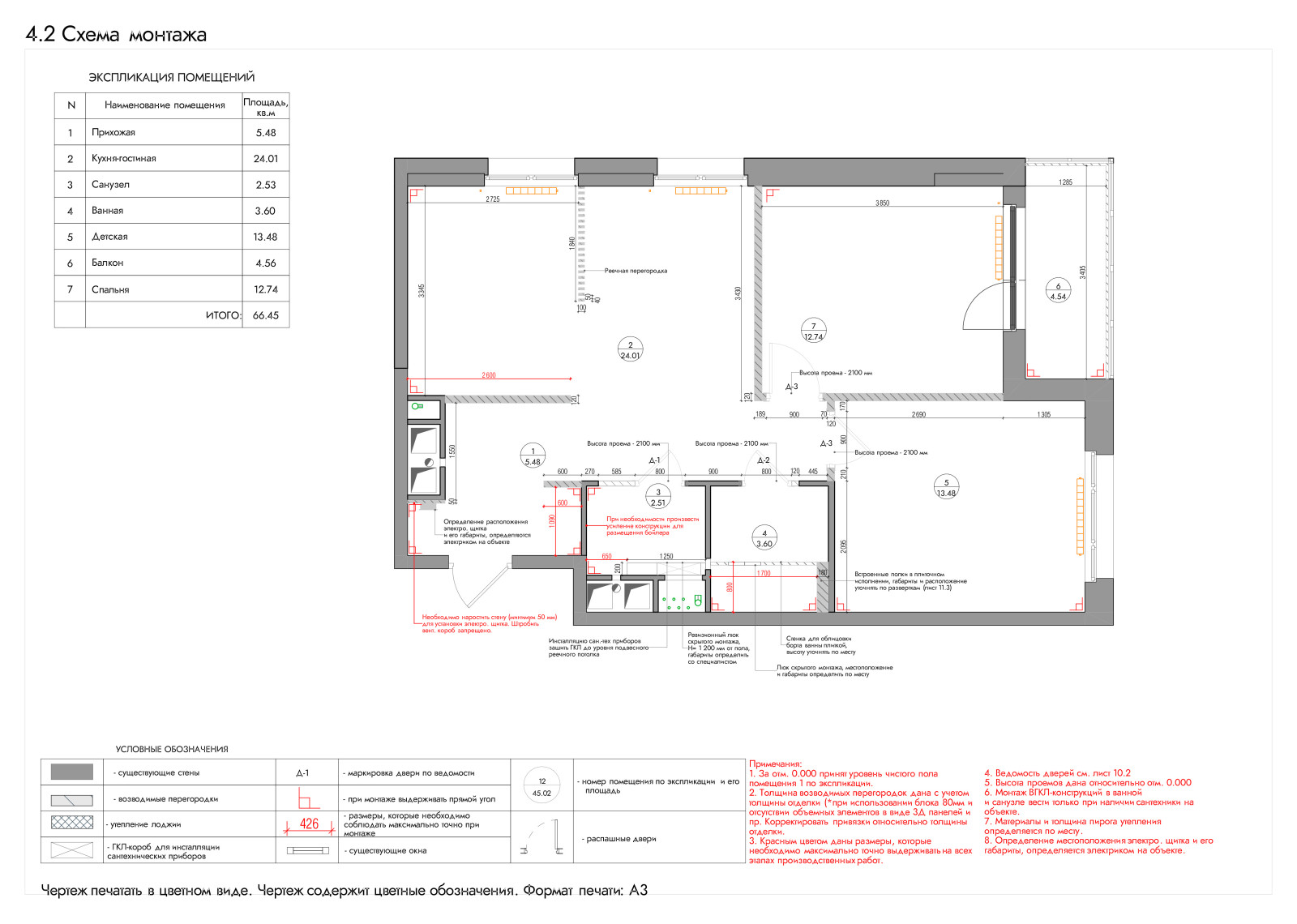
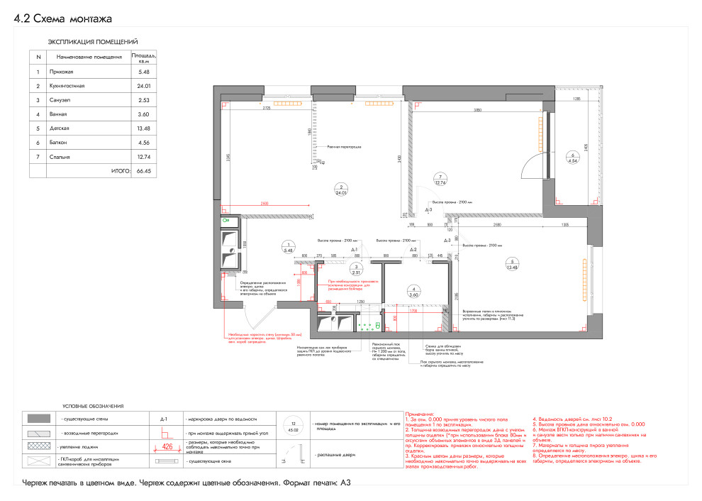
Схема монтажа

Другие фотографии в проекте Квартира для семьи с ребенком

Развертка стен детской
Развертка стен ванной
Развертка стен санузла
Ведомости и спецификации
Ведомости и спецификации
Схема отделки

Вопросы к фото 0

Задайте вопрос

Вам ответят эксперты. Пришлем уведомление, когда вам ответят