logo
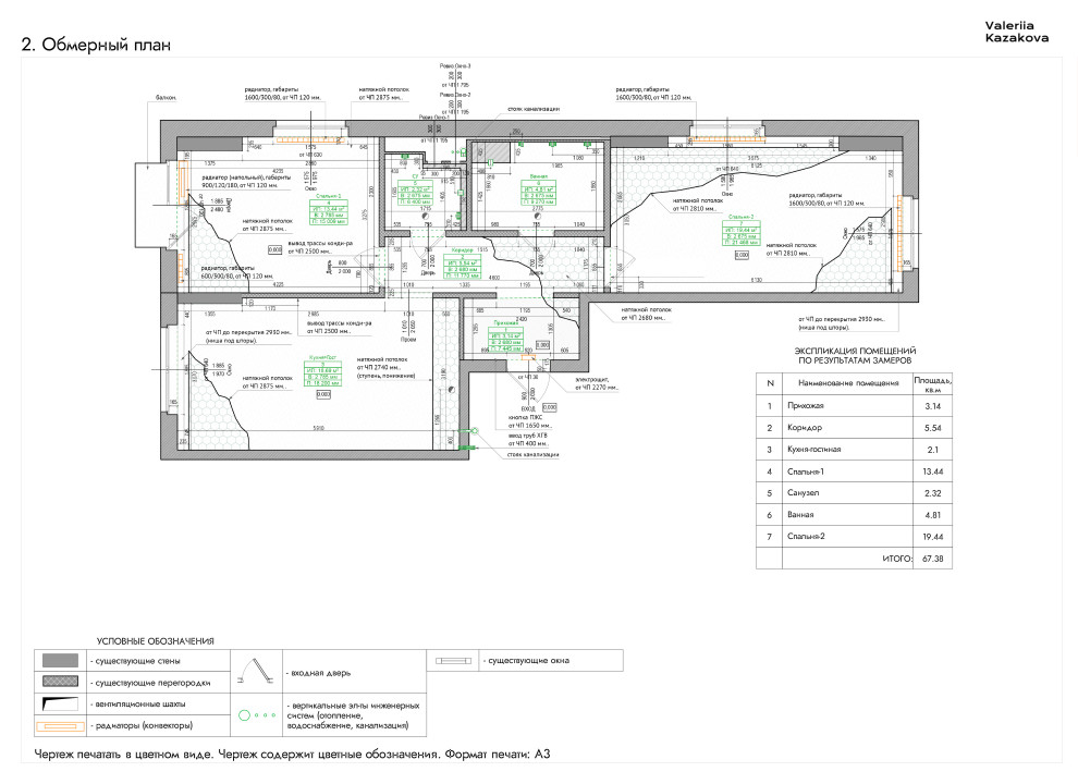
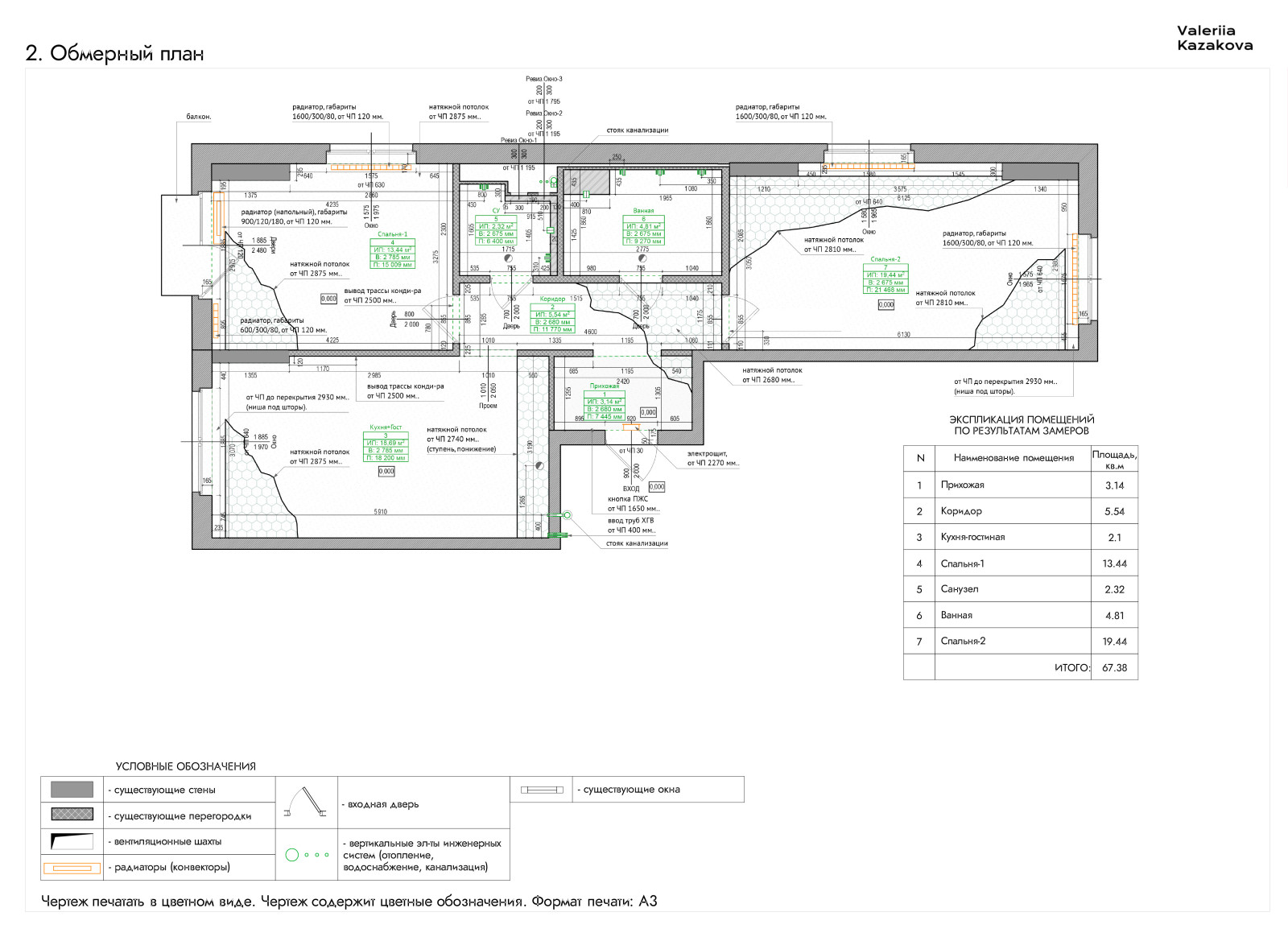
Обмерный план

Другие фотографии в проекте Квартира для программиста

Вопросы к фото 0

Задайте вопрос

Вам ответят эксперты. Пришлем уведомление, когда вам ответят

Санкт-Петербург, дизайн-проект, перепланировка квартиры, рабочая документация

Valeriia Kazackova

Valeriia Kazackova

Архитекторы

Смотреть профиль

3

отзыва

5

Рейтинг

Квартира для программиста

Квартира для молодого человека. Заказчик работает в сфере IT, любит музыку, поэтому необходимо место для проигрывателя и виниловых пластинок. Предпочитает натуральные природные материалы.

Вопросы к фото 0