
Архитекторы
5
·
10 отзывов
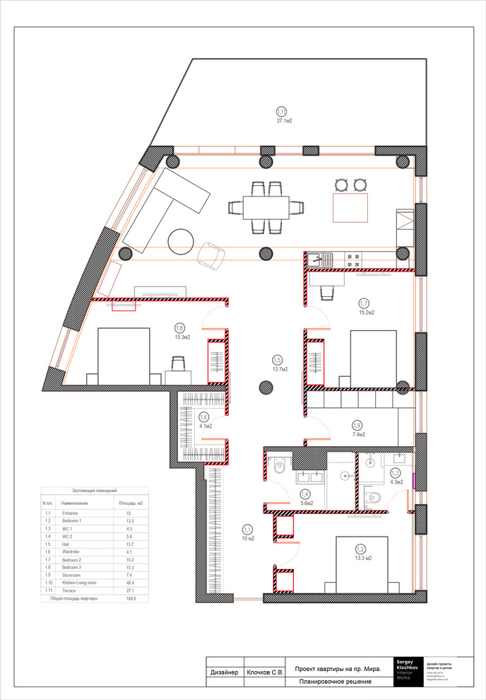
Квартира для молодой семьи на Проспекте Мира.
Современная квартира с элементами лофта, арт-деко и минимализма. Основной задачей было создать светлое спокойное пространство, но с интересными деталями и большой кухни - гостиной.
Другие фотографии в проекте
Вопросы к фото 0
Задайте вопрос
Вам ответят эксперты. Пришлем уведомление, когда вам ответят




