
Дизайнеры интерьера
5
·
10 отзывов
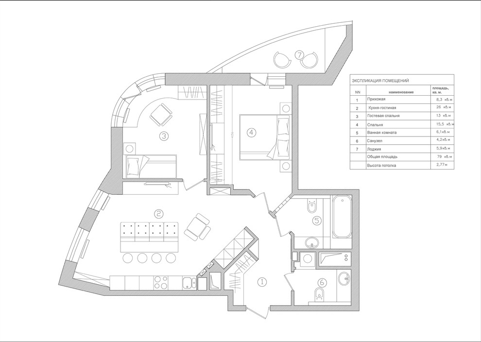
Квартира для молодой семьи
Инна Вольвак, Юлия Покровская. Уклад жизни молодой семьи имеет свои особенности: частые гости, ночные посиделки, просмотр киноновинок. Исходя из этого мы предложили увеличить площадь гостиной, немного отодвинув стену соседней комнаты (чтобы обеспечить оптимальное расстояние между диваном и телевизором) и присоединив часть прихожей. В результате получилось студийное пространство кухни-гостиной, имеющее необычную конфигурацию.
Другие фотографии в проекте
Вопросы к фото 0
Задайте вопрос
Вам ответят эксперты. Пришлем уведомление, когда вам ответят




