
Дизайнеры интерьера
5
·
10 отзывов
Квартира для молодой семьи
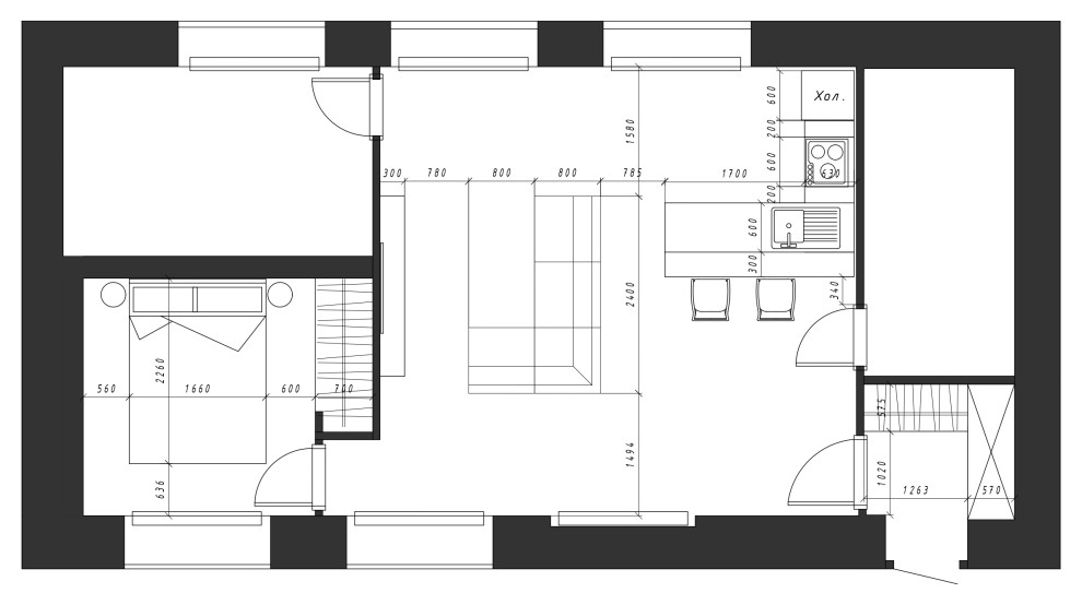
План расстановки мебели
Другие фотографии в проекте
Вопросы к фото 0
Задайте вопрос
Вам ответят эксперты. Пришлем уведомление, когда вам ответят

Дизайнеры интерьера
5
·
10 отзывов
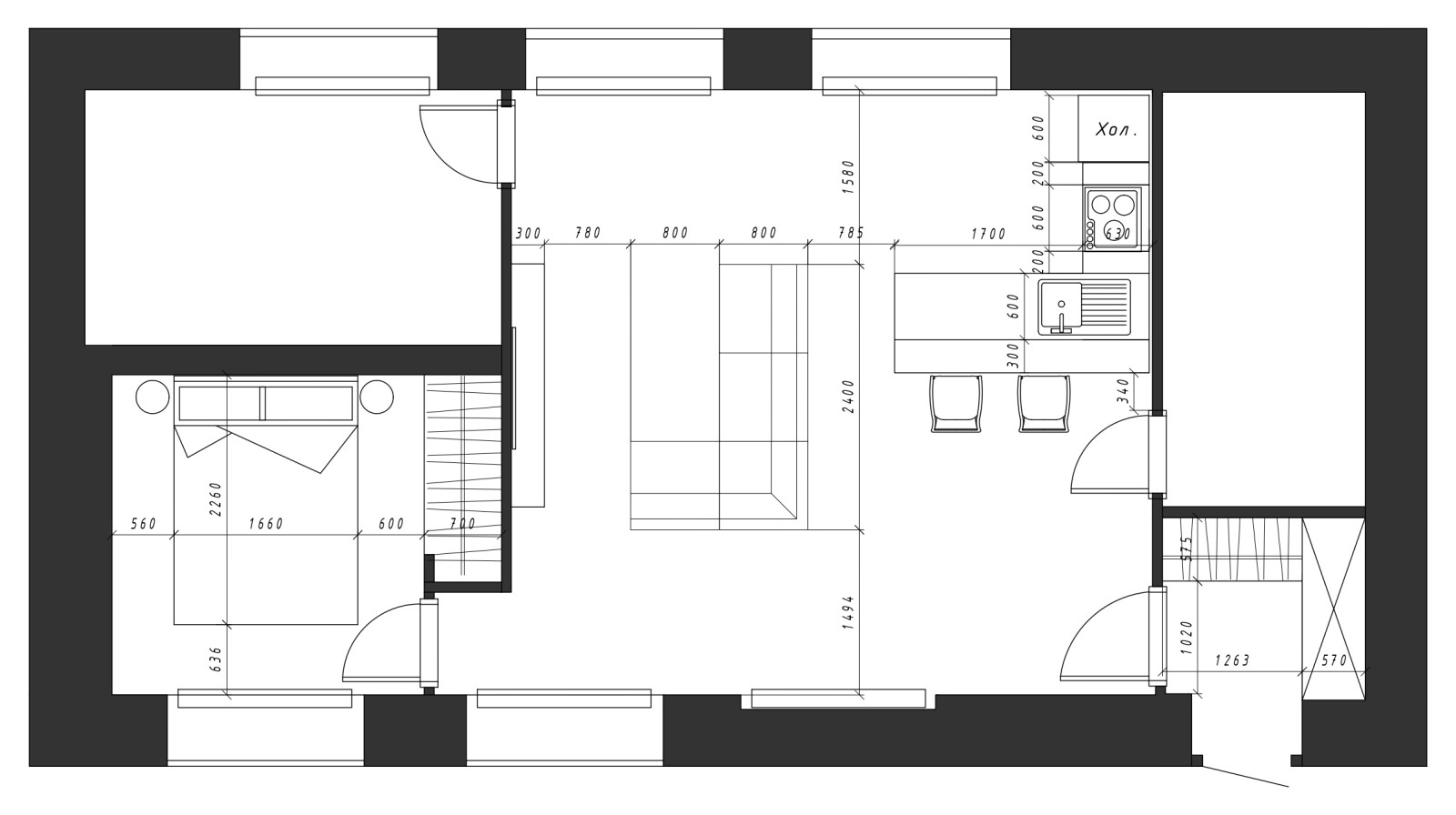
План расстановки мебели
Другие фотографии в проекте
Вам ответят эксперты. Пришлем уведомление, когда вам ответят