Другие фотографии в проекте Квартира для молодой семьи
Ещё 2 фото
Сначала новые
Вам ответят эксперты. Пришлем уведомление, когда вам ответят
Контемпорари
Анастасия Андрианова
Дизайнеры интерьера
7
отзывов
5
Рейтинг
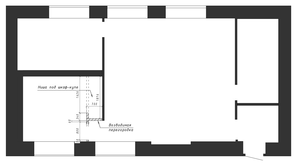
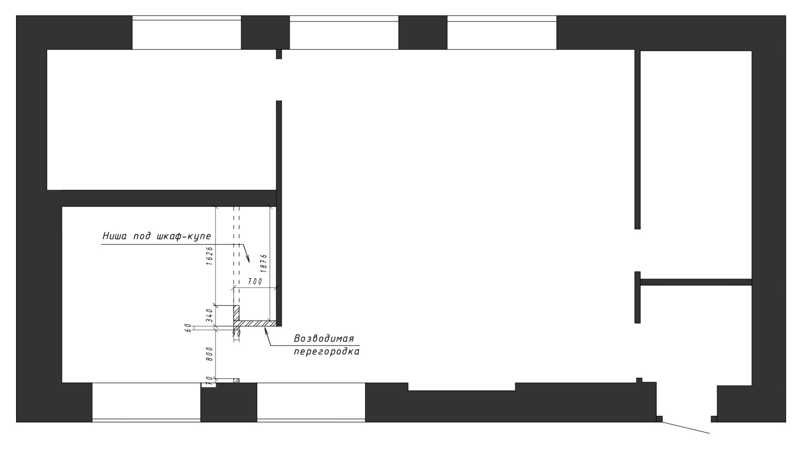
Монтажный план