
Дизайнеры интерьера
5
·
10 отзывов
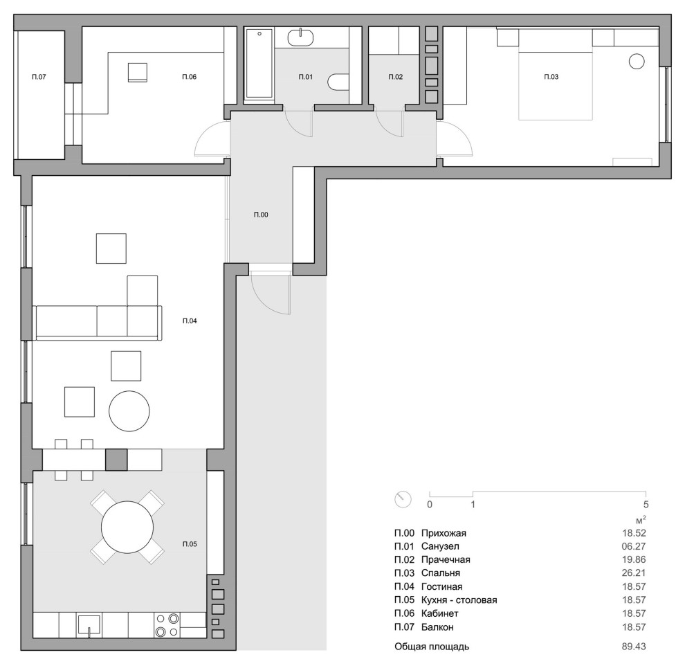
Квартира для молодого человека
Строгость и монументальность интерьера подчеркивают темные цвета а также выделение несущих стен штукатуркой под бетон. . Площадь: 93,3 кв.м.
Другие фотографии в проекте
Вопросы к фото 0
Задайте вопрос
Вам ответят эксперты. Пришлем уведомление, когда вам ответят




