
Дизайнеры интерьера
5
·
10 отзывов
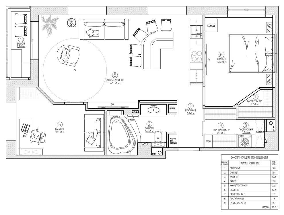
КВАРТИРА ДЛЯ ДЕВУШКИ В ЖК "ТЕХНОПАРК" 72кв.м.
ОСНОВНЫЕ ЗАДАЧИ: . - Необходимо было обойтись без коридоров, заходя в квартиру, максимально просматривалось одно большое пространство кухни гостиной; . - Создать отдельную гардеробную в спальне; . - Выделить зону под постирочную и хозяйственную зону; . - Отдельную гардеробную с большим количеством систем хранения; . - Выход на балкон из гостиной; . - Заказчица имеет свой определенный вкус, она очень любит яркие сверкающие вещи, стразы, натуральные камни и имитацию камней, ар-декошные элементы, любит яркие оттенки, особенно бирюзовые, пурпурные, виноградные, фиолетовые. . . СТИЛЬ: . Интерьер строится на миксе трех стилей: современный, легкая классика, ар-деко . . ЦВЕТОВАЯ ПАЛИТРА ОБЪЕКТА: . У заказчицы есть любимые цвета, которые она хотела обязательно использовать в оформлении своего интерьера, при чем нужно было разделить эти цвета по зонам. . Кухню гостиную мы обыграли сочетанием сложного серого с несколькими оттенками фиолетового цвета (яркий баклажановый, лиловыми оттенками). . Для кабинета использовался бирюзовый цвет со светло бежевыми стенами. . В спальне преобладают темные оттенки: черная стена имитирующая каретную стяжку. Сложный темно серый цвет декоративной штукатурки на стенах. Основной яркий акцент здесь – бархатные торшеры виноградного цвета. . Санузел выполнен в контрастном сочетании бежевого оникса с черным мрамором. . . ОСНОВНЫЕ ОТДЕЛОЧНЫЕ МАТЕРИАЛЫ: . Пол: В прихожей и кухне используется плитка под натуральный мрамор от KERAMA MARAZZI. В остальных зонах паркетная доска. . На стенах — декоративная штукатурка, причем она не просто серого цвета, в ней замешен фиолетовый цвет, чтобы было пересечение с остальными цветами. . На фартуке в кухне использована стеклянная мозаика в форме гексагонов. . В гостиной у нас ярким акцентным элементом стало световое панно из эпоксидной смолы, имитирующий срез камня, усыпанные стразами и камнями из горного хрусталя. Это ручная работа, сделали его нам мастера студии современной живописи Art me Up. . Здесь же, в гостиной, располагается большое зеркальное панно, которое делает пространство еще больше и необходимо для занятий на пилоне. . На балконе мы установили деревянные рейки, которые со стены переходят на потолок. Здесь же у нас обыгран короб для внешнего блока кондиционеров, сверху мраморной мозаикой, стены дек.штукатуркой. . В спальной комнате за изголовьем кровати расположены гипсовые 3D панели, компании «Artpole» в форме каретной стяжки, с кристаллами Swarovski. Зеркала с фрезерованными панелями по бокам от кровати. Черное стеклянное панно в рамке из мозайки со стразами. . Лепнину мы использовали полеуретановую Европласт. . Двери: Profildoors . . СИСТЕМЫ ХРАНЕНИЯ: . Все системы хранения выполнены на заказ. . Основная часть личных вещей заказчиков будет храниться в гардеробных. . Также в квартире предусмотрено хозяйственное помещение, где разместилась стиральная машина, а также будет храниться уборочный и хозяйственный инвентарь. . Хранение в санузле мы совместили с доступом к коммуникациям и счетчикам над инсталяцией. . В гостиной небольшие встроенные полки в каминно-телевезионной зоне. . Небольшой встроенный шкафчик при входе в квартиру. . . ПРЕДМЕТЫ МЕБЕЛИ В ИНТЕРЬЕРЕ: . Практически вся мебель выполнена на заказ, за исключением: . Кровати с тумбочками от фабрики Dupen. . Диваны от компании Apart Mebel. . Журнальный столик от студии современной живописи Art me Up. . Кресло: Кресло El Capitan, коллекция Эль Капитан от KARE DESIGN . . Хозяйка квартиры оооочень любит путешествовать, в кабинете ее мечтой было сделать необычную карту, где она могла бы отмечать все места, которые она посещала. Нам сделали огромную карту мира из ПВХ и дерева, очень стильную, цветную, объемную. . . ДЕКОР И ТЕКСТИЛЬ: . Цветочным оформлением занималась Елена Жарова и студия Jardiz . Декор: Moon-Stores и Zara Home . Мягкие пледы и подушки: Mionoche.ru . Картина в кабинете: «АРТ МОСТ» художница Гольцева Евгения «Контраст» .
Другие фотографии в проекте
Вопросы к фото 0
Задайте вопрос
Вам ответят эксперты. Пришлем уведомление, когда вам ответят




