
Дизайнеры интерьера
4.73
·
10 отзывов
Квартира для активной пары
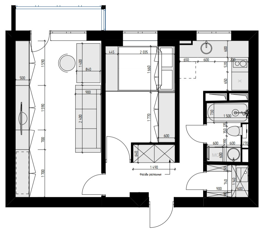
Двухкомнатная квартира в панельном доме, площадью 45 кв.м. . Минимальная перепланировка по объединению санузла, утепление балкона, выравнивание стен и пола. . В квартире небольшая функциональная кухня, спальня с кроватью-подиумом, гостиная, совмещенный санузел и небольшая гардеробная. . . Дизайн-проект с сопровождением: 85 000 руб. . . Черновые и чистовые работы: 835 000 руб. . • Выравнивание стен под встраиваемую мебель . • Окрашивание стен . • Минимальная перепланировка . • Утепление балкона . • Использование бюджетной инженерной сантехники (полипропилен) . • Простая схема освещения . • Потолки с декоративными балками . . Черновые материалы: 380 000 руб. . • Гипсокартон Knauf влагостойкий . • Метало профиль Knauf . • Штукатурные смеси, Knauf rotband, Knauf fugen . • Корейская Шпаклевка Terraco . • Стеклохолст 40гр.кв м . • Клей для плитки Ceresit . • Эпоксидная затирка для плитки Kerakoll . • Потолки с декоративными балками . . Чистовые материалы: 395 000 руб. . • Двери межкомнатные (4шт) высокие . • Входная дверь . • Паркетная доска +плинтус . • Краска настенная Tikkurila . • Фотообои . • Керамогранит/плитка (пол /стены) . . Чистовое оборудование: 190 000 руб. . • Розетки/выключатели/терморегуляторы теплого пола . • Светильники потолочные LightStar . • Светильники настенные . • Сантехника в ванную Grohe . . Мебель: 815 000 руб. . • Мебель в прихожую . • Кухня + столешница пластик . • Кровать-подиум + шкаф . • Встраиваемый шкаф в гостиной . • Диван со спальным местом . • Стул + стол . • Мебель в санузле . • Полки в гардеробную . . Бытовая техника: 180 000 руб. . • Холодильник встраиваемый . • Духовой шкаф . • Варочная панель . • Вытяжка . • Посудомоечная машина . • Стиральная машина . . ИТОГО: 2 880 000 руб.
Другие фотографии в проекте
Вопросы к фото 0
Задайте вопрос
Вам ответят эксперты. Пришлем уведомление, когда вам ответят




