
Дизайнеры интерьера
4.73
·
10 отзывов
Квартира для активной пары
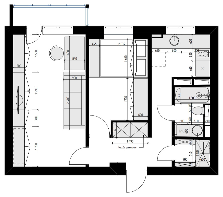
Двухкомнатная квартира в панельном доме, площадью 45 кв.м. . Минимальная перепланировка по объединению санузла, утепление балкона, выравнивание стен и пола. . В квартире небольшая функциональная кухня, спальня с кроватью-подиумом, гостиная, совмещенный санузел и небольшая гардеробная. . . Дизайн-проект с сопровождением: 85 000 руб. . . Черновые и чистовые работы: 835 000 руб. . • Выравнивание стен под встраиваемую мебель . • Окрашивание стен . • Минимальная перепланировка . • Утепление балкона . • Использование бюджетной инженерной сантехники (полипропилен) . • Простая схема освещения . • Потолки с декоративными балками . . Черновые материалы: 380 000 руб. . • Гипсокартон Knauf влагостойкий . • Метало профиль Knauf . • Штукатурные смеси, Knauf rotband, Knauf fugen . • Корейская Шпаклевка Terraco . • Стеклохолст 40гр.кв м . • Клей для плитки Ceresit . • Эпоксидная затирка для плитки Kerakoll . • Потолки с декоративными балками . . Чистовые материалы: 395 000 руб. . • Двери межкомнатные (4шт) высокие . • Входная дверь . • Паркетная доска +плинтус . • Краска настенная Tikkurila . • Фотообои . • Керамогранит/плитка (пол /стены) . . Чистовое оборудование: 190 000 руб. . • Розетки/выключатели/терморегуляторы теплого пола . • Светильники потолочные LightStar . • Светильники настенные . • Сантехника в ванную Grohe . . Мебель: 815 000 руб. . • Мебель в прихожую . • Кухня + столешница пластик . • Кровать-подиум + шкаф . • Встраиваемый шкаф в гостиной . • Диван со спальным местом . • Стул + стол . • Мебель в санузле . • Полки в гардеробную . . Бытовая техника: 180 000 руб. . • Холодильник встраиваемый . • Духовой шкаф . • Варочная панель . • Вытяжка . • Посудомоечная машина . • Стиральная машина . . ИТОГО: 2 880 000 руб.
Другие фотографии в проекте
Вопросы к фото 1
Ольга Ландик
6 л.
Задайте вопрос
Вам ответят эксперты. Пришлем уведомление, когда вам ответят
white sink, Без острова, Белый, Г-образная кухня, Гладкий фасад, Закрытое помещение, Контемпорари, Коричневый, Кухня, Маленький, Москва, Накладная, Чёрный, Шкафы светлого оттенка, белая кухня, белая мойка, мойка у окна, окно без штор
Похожие фотографии

Квартира на ул. Большая Черкизовская
Источник вдохновения для домашнего уюта: маленькая угловая, отдельная, светлая кухня в современном стиле с накладной мойкой, плоскими фасадами, белыми фасадами, деревянной столешницей, серым фартуком, белой техникой, разноцветным полом и коричневой столешницей без острова для на участке и в саду
Евгения Матвеенко

Кухня в современном стиле, ЖК Лазурные Небеса, г. Казань
На фото: угловая, светлая кухня среднего размера в современном стиле с обеденным столом, накладной мойкой, плоскими фасадами, белыми фасадами, деревянной столешницей, серым фартуком, фартуком из керамогранитной плитки, техникой из нержавеющей стали, коричневым полом и коричневой столешницей без острова с
Эталон Мебель

Светлая угловая белая кухня с горизонтальными верхними шкафами
На фото: маленькая угловая, светлая кухня-гостиная в белых тонах с отделкой деревом в стиле модернизм с накладной мойкой, плоскими фасадами, белыми фасадами, деревянной столешницей, белым фартуком, фартуком из гранита, черной техникой, полом из керамической плитки, белым полом и коричневой столешницей без острова для на участке и в саду с
IDM Eterno - фасадные плиты для интерьера и мебели

Светлая угловая белая кухня с горизонтальными верхними шкафами
Стильный дизайн: маленькая угловая, светлая кухня-гостиная в белых тонах с отделкой деревом в стиле модернизм с накладной мойкой, плоскими фасадами, белыми фасадами, деревянной столешницей, белым фартуком, фартуком из гранита, черной техникой, полом из керамической плитки, белым полом и коричневой столешницей без острова для на участке и в саду - последний тренд
IDM Eterno - фасадные плиты для интерьера и мебели

Светлая угловая белая кухня с горизонтальными верхними шкафами
На фото: маленькая угловая, светлая кухня-гостиная в белых тонах с отделкой деревом в стиле модернизм с накладной мойкой, плоскими фасадами, белыми фасадами, деревянной столешницей, белым фартуком, фартуком из гранита, черной техникой, полом из керамической плитки, белым полом и коричневой столешницей без острова для на участке и в саду
IDM Eterno - фасадные плиты для интерьера и мебели

Светлая угловая белая кухня с горизонтальными верхними шкафами
Пример оригинального дизайна: маленькая угловая, светлая кухня-гостиная в белых тонах с отделкой деревом в стиле модернизм с накладной мойкой, плоскими фасадами, белыми фасадами, деревянной столешницей, белым фартуком, фартуком из гранита, черной техникой, полом из керамической плитки, белым полом и коричневой столешницей без острова для на участке и в саду
IDM Eterno - фасадные плиты для интерьера и мебели

Светлая угловая белая кухня с горизонтальными верхними шкафами
Источник вдохновения для домашнего уюта: маленькая угловая, светлая кухня-гостиная в белых тонах с отделкой деревом в стиле модернизм с накладной мойкой, плоскими фасадами, белыми фасадами, деревянной столешницей, белым фартуком, фартуком из гранита, черной техникой, полом из керамической плитки, белым полом и коричневой столешницей без острова для на участке и в саду
IDM Eterno - фасадные плиты для интерьера и мебели

Капитальный ремонт квартиры после затопления
Источник вдохновения для домашнего уюта: маленькая отдельная, угловая, светлая кухня в белых тонах с отделкой деревом в современном стиле с одинарной мойкой, белыми фасадами, деревянной столешницей, белым фартуком, техникой под мебельный фасад, полом из керамогранита, коричневым полом и бежевой столешницей без острова для на участке и в саду
Студия Ремонтов

Капитальный ремонт квартиры после затопления
Идея дизайна: маленькая отдельная, угловая, светлая кухня в белых тонах с отделкой деревом в современном стиле с одинарной мойкой, белыми фасадами, деревянной столешницей, белым фартуком, техникой под мебельный фасад, полом из керамогранита, коричневым полом и бежевой столешницей без острова для на участке и в саду
Студия Ремонтов

Кухня
Свежая идея для дизайна: маленькая отдельная, угловая, светлая, серо-белая кухня в современном стиле с одинарной мойкой, плоскими фасадами, белыми фасадами, столешницей из акрилового камня, белым фартуком, фартуком из керамической плитки, техникой под мебельный фасад, полом из керамогранита, белым полом и черной столешницей без острова для на участке и в саду - отличное фото интерьера
Студия Ремонтов

Кухня
Свежая идея для дизайна: маленькая отдельная, угловая, светлая, серо-белая кухня в современном стиле с одинарной мойкой, плоскими фасадами, белыми фасадами, столешницей из акрилового камня, белым фартуком, фартуком из керамической плитки, техникой под мебельный фасад, полом из керамогранита, белым полом и черной столешницей без острова для на участке и в саду - отличное фото интерьера
Студия Ремонтов

Профсоюзная
На фото: маленькая угловая кухня в белых тонах с отделкой деревом в современном стиле с обеденным столом, накладной мойкой, плоскими фасадами, белыми фасадами, деревянной столешницей, бежевым фартуком, фартуком из керамической плитки, черной техникой, паркетным полом среднего тона, коричневым полом и бежевой столешницей без острова для на участке и в саду с
КубКвадрат студия





Fatima
6 л.
Подскажите , из чего столешница