
Анастасия Панова Студия Nova.dizain
Дизайнеры интерьера
0
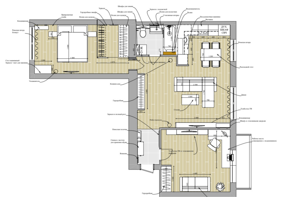
Квартира 66 м² с кабинетом на ул. Симонова
Пространство гостиной и коридора образует единую площадь, что визуально расширяет пространство. . Детально продуманы все зоны хранения, таким образом, чтобы они занимали минимальную площадь, а их функционал был максимальным.
Другие фотографии в проекте
Вопросы к фото 0
Задайте вопрос
Вам ответят эксперты. Пришлем уведомление, когда вам ответят




