
Вам ответят эксперты. Пришлем уведомление, когда вам ответят
гостиная-кухня-столовая, зонирование квартиры, перепланировка, перепланировка квартиры, план квартиры, планировка, планировка квартиры, планировочное решение, проект квартиры, чертеж квартиры
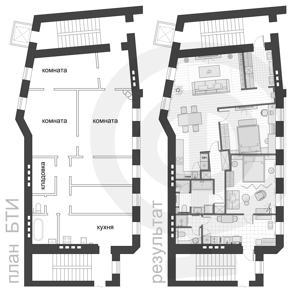
Квартира площадью 107кв.м в старом фонде, с парадным и чёрным входом и с газовой кухней. . ЗАДАЧА: . Из одной квартиры сделать две: квартира побольше – для проживания молодого человека и девушки (нужна кухня, столовая зона, гостиная и спальня с рабочим местом) и квартира поменьше – под сдачу (кухня, гостиная, небольшая спальня). . РЕЗУЛЬТАТ: . Через парадный вход попадаем в квартиру для молодого человека и девушки. Открытое пространство квартиры включает в себя гостиную с домашним кинотеатром, обеденную зону и кухню. Кухня вписывается в границы прежней кладовки и не заходит на территорию жилых комнат. Вход в спальню расположен не на виду. В спальне: кровать, рабочее место, будуарный столик. Санузел с ванной и душем спрятан в глубине квартиры. В коридоре, ведущем в санузел, устроены места хранения. . Чёрный вход – это вход в квартиру под сдачу. Газовая кухня осталась в своих прежних границах. В кухне уместились минимальный набор необходимой техники и небольшой обеденный столик. Ближе к окну – зона прихожей со шкафом и зеркалом. В санузел попадаем из кухни, но не сразу, а через душевую комнату. Жилая комната площадью 17кв.м разделена на спальную зону и зону гостиной. В роли разделителя выступает ширма.