
mstrsk bureau / бюро "Мастерская"
Архитекторы
0
Квартира 10
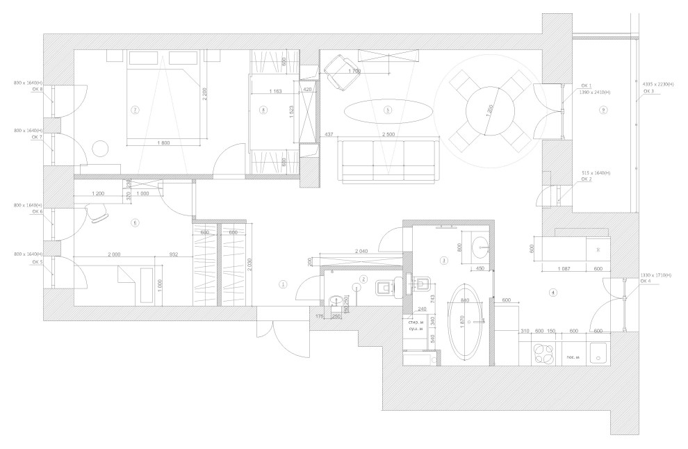
Интерьер квартиры 89м2 для молодой творческой семьи. . Здание, в котором находится квартира, построено в 1939-м году и характерно соединением принципов конструктивизма, ар-деко и классицизма. Мы отметили эту необычную черту и объединили в интерьере квартиры частичную консервацию исторических элементов и современное наполнение: технику, мебель, освещение, декор. . Интерьер поэтизирует тактильные и визуальные свойства поверхностей и пространства в целом. Впротивовес современным минималистичным интерьерам, благодаря наполненности историческими и современными элементами и паттернами, квартира приобретает живую и разнообразную фактуру, открытую к появлению новых деталей. Выбирая эстетический вектор, мы руководствовались желанием обеспечить свободу дальнейшей жизни квартиры, в том какие именно предметы мебели или декора будут приобретать хозяева в будущем, сделать квартиру живым организмом и уйти от нарочитой взвешенности и холодности в пользу теплого и удобного интерьера.
Другие фотографии в проекте
Вопросы к фото 0
Задайте вопрос
Вам ответят эксперты. Пришлем уведомление, когда вам ответят




