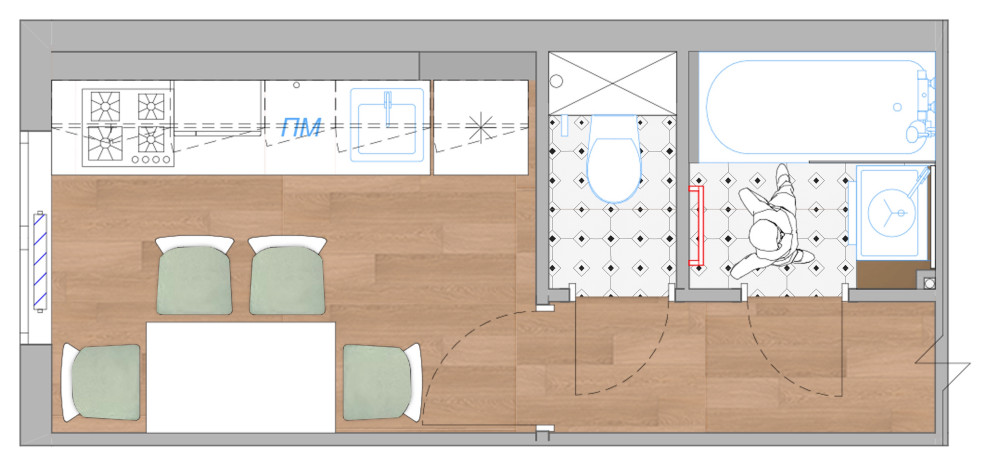
Планировка.jpg

Другие фотографии в проекте Кухня и санузел 10 м2

IMG_5558.WEBP
IMG_5559.WEBP
IMG_5561.WEBP
IMG_5560.WEBP
IMG_5557.WEBP

Вопросы к фото 0

Задайте вопрос

Вам ответят эксперты. Пришлем уведомление, когда вам ответят

Контемпорари, Мурманск

Кристина Козырева

Дизайнеры интерьера

Смотреть профиль

0

отзывов

0

Рейтинг

Кухня и санузел 10 м2

Проект для молодой семейной пары. . Кухня 6,85 м2, ванна 2,3 м2, туалет 1 м2. Высота потолка 2,5 м. . . Квартира в панельном доме с газовой плитой. Радиатор отопления зашит в перекрытие под подоконником. Особенность дома. Из-за газа отказаться от двери на кухню нельзя, по нормам безопасности она должна быть. . . Главными пожеланиями было создать светлое минималистичное пространство в условиях ограниченного бюджета. Материалы выбирались максимально доступные, в санузле сочетание плитки и краски позволит сэкономить и не замуровывать все стены в керамику. . . Кухонный гарнитур в линию, вместо плитки на фартуке стеновая панель в тон столешнице, холодильник отдельностоящий, потому между ним и мойкой сделана перегородка, чтобы брызги не попали на технику. . В небольшой ванной необходимо было разместить ванную, раковину и стиральную машину. Поэтому был выбран вариант раковины над стиральной машиной. Причем между ними установлена столешница, чтобы создать единую поверхность и иметь дополнительное место для разных вещиц, необходимых в ванной комнате. В туалете над инсталяцией за жалюзийными дверками находится водонагреватель и зона хранения. .

Вопросы к фото 0