Другие фотографии в проекте Коттеджный поселок Крепость г. Краснодар
Ещё 14 фото
Сначала новые
Вам ответят эксперты. Пришлем уведомление, когда вам ответят
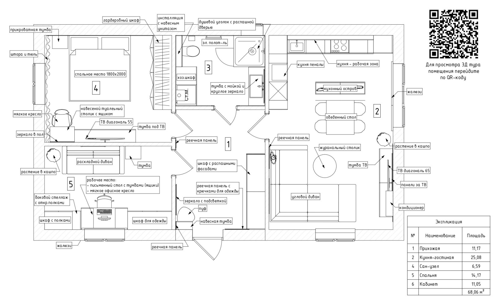
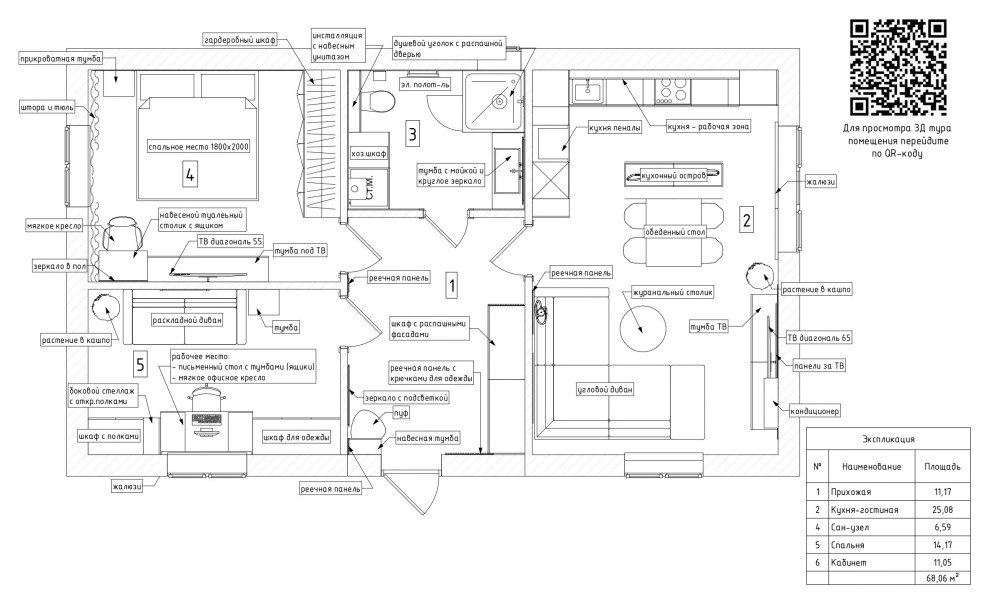
Контемпорари, Краснодар
Юлия Конради
Дизайнеры интерьера
0
отзывов
Рейтинг
Контемпорари
Краснодар