Коттедж в стиле Шале
Антон Канаткин

Антон Канаткин

Архитекторы

0

Коттедж в стиле Шале

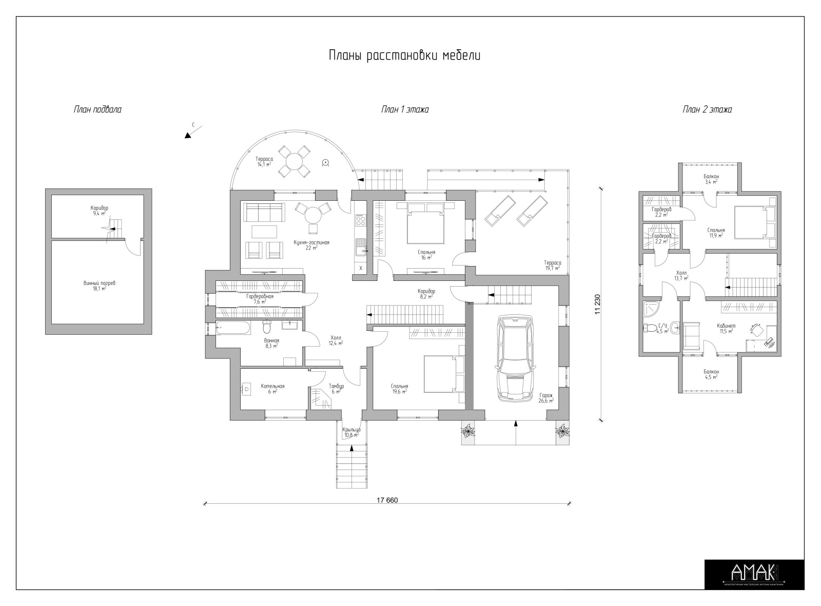
Окунёмся в Швейцарию, а именно, затронем загадочный стиль Шале. Где главную роль играет естественность и слияние с природой. Выдающиеся качества стиля отображены в следующем: камень – долговечность; цветовая палитра – близость к природе; массивные крыши – чувство защиты; дерево – домашний уют. Самые элитные горнолыжные курорты выполнены именно в этом стиле. Дом для тех, кто ценит уединение, покой, простоту и уют. Стиль рождённый самой природой, а именно Альпийскими горами. Белый цвет – цвет засыпанных горных вершин. Кровля из дранки была выполнена совместно с черепицей из солнечных панелей, которые придают эффект хай-тека. В доме площадью 260 кв.м. три спальни, гараж, две террасы, несколько гардеробных и даже винный погребок.

Другие фотографии в проекте

Коттедж в стиле ШалеКоттедж в стиле ШалеКоттедж в стиле ШалеКоттедж в стиле Шале

Вопросы к фото 0

Задайте вопрос

Вам ответят эксперты. Пришлем уведомление, когда вам ответят