
Ландшафтные дизайнеры
0
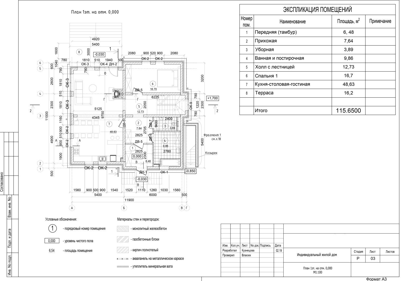
Коттедж; стадии АР, КР
Разработка рабочей документации проекта коттеджа. . Разделы АР, КР
Другие фотографии в проекте
Вопросы к фото 0
Задайте вопрос
Вам ответят эксперты. Пришлем уведомление, когда вам ответят

Ландшафтные дизайнеры
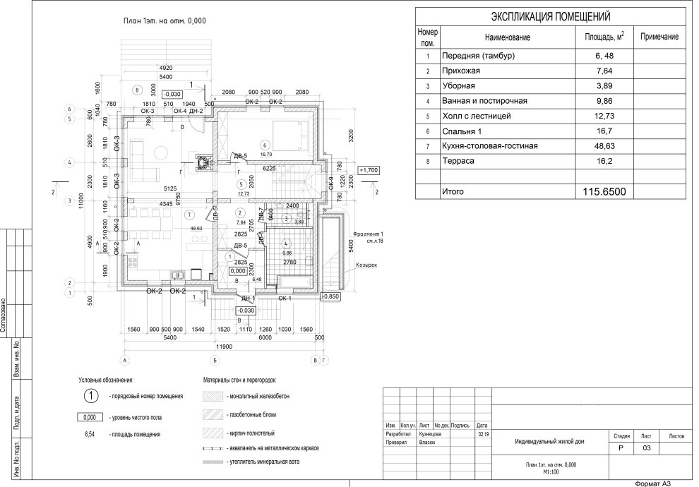
0
Разработка рабочей документации проекта коттеджа. . Разделы АР, КР
Другие фотографии в проекте
Вам ответят эксперты. Пришлем уведомление, когда вам ответят