Коттедж с баней

Другие фотографии в проекте Коттедж с баней

Вопросы к фото 0

Задайте вопрос

Вам ответят эксперты. Пришлем уведомление, когда вам ответят

Викторианский

Anastasia Simonova

Anastasia Simonova

Архитекторы

Смотреть профиль

0

отзывов

0

Рейтинг

Коттедж с баней

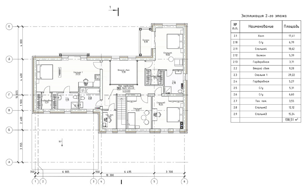
Дом запроектирован в виде двухэтажного объема с гаражом и теплым неэксплуатируемым чердаком, а . также пристроенной террасой,беседкой и одноэтажной баней, рассчитан на проживание одной семьи. . В доме предусмотрены . следующие помещения - на 1 этаже: холл, гардеробная, сан.узел, котельная с независимым выходом на улицу, кухня, . гостиная-столовая, гараж,холл; на 2 этаже: коридор, второй свет, 4 спальни, 3 санузла, 2 гардеробных комнаты. . Веранда примыкает непосредственно к ограждающим стенам кухни,столовой -гостиной и гаражу. Над гаражом . предусмотрен навес на 2 машины.

Вопросы к фото 0