
Дизайнеры интерьера
3.93
·
10 отзывов
Котельники
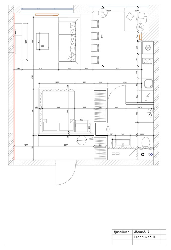
Дизайн-проект квартиры, площадью 48,3 м2, в ЖК Белые Росы (Котельники, МО) мастерская Geometrium разрабатывала для молодого парня, поклонника спорта и здорового образа жизни. Заказчик пока не думает о прибавлении, но не исключает заселения к себе девушки в будущем. В свободное время любит собираться дома с друзьями и курить кальян. . . Функциональные задачи . . Пожеланием клиента было создать современный дизайн интерьера, напоминающий бар, с элементами лофта. Для того, чтобы реализовать в жизнь мечту клиента, мы решили объединить зону кухни, столовой и гостиной в единое пространство. При этом, спальную зону мы расположили прямо в центре квартиры, отгородив ее от остального пространства лишь стеклянной перегородкой. Оставшееся пространство квартиры почти полностью лишено перегородок, за исключением санузла. То есть, весь интерьер выполнен одним большим открытым пространством, что визуально увеличивает площадь квартиры. . . Также заказчик пожелал объединить балкон и гостиную. Но так как это решение достаточно сложно в согласовании, мы решили разместить там перегородку из стекла. Учитывая информацию о клиенте, мы предусмотрели в объединенной зоне лоджии кальянную зону для совместного времяпрепровождения заказчика с друзьями. . . Отделка . . Мы не изменяли себе, и в этом проекте снова отдали предпочтение натуральным материалам. Для создания желаемого интерьера мы выбрали плитку из натурального сланца. Заказчик изначально выделил ее в наших других дизайн-проектах. Этой плиткой мы отделали пол в коридоре, лоджии, кухне и санузле. В оставшемся пространстве мы решили выполнить пол паркетной доской. . . Для выполнения элементов лофта было решено создать имитацию винтажного кирпича. Для этого был выбран клинкерный кирпич из бетона. Его можно увидеть на некоторых частях стен по всей квартире. Оставшиеся стены сделаны под покраску и отделаны сланцевой плиткой, о которой уже говорилось выше. . . Самое интересное решение выполнено на потолке. Там можно увидеть имеющийся бетон и перекрытия. Бетон мы немного зачистили и покрыли лаком. Над гостиной сделали опуск потолка, который задает контраст в интерьере. . . Мебель и хранение . . В интерьере мы использовали минимум предметов мебели и практически все они были российского производства, либо от Ikea. К примеру, хранение от Ikea — система Pax. Специально для них мы установили перегородки таким образом, чтобы получить незаметные встроенные шкафчики. Из Ikea также взята кухня. Помимо этого, были использованы копии дизайнерских светильников и предметов мебели. . . Диван Stone в гостиной приобретен на фабрике 8 марта Selecta. . Атмосферу бара отлично подчеркивают стулья Deephouse, а также высокие шкафы, которыми выполнена барная стойка. Здесь же можно заметить столешницу из керамогранита, имитирующего бетон, — Laminam. С такой же столешницей выполнена кухня. . . Мебели на заказ в этом проекте по минимуму, дабы оптимизировать бюджет. Это – тумба-скамья при входе, диван на лоджии, там же полка и тумба со встроенной в нее раковиной. . . Для кровати мы придумали весьма неординарное и бюджетное решение. Для каркаса мы использовали обыкновенные паллеты (поддоны из дерева), на которых будет располагаться матрац. . . Хранение в этом интерьере скомпоновано по одной линии. Эта линия начинается от входа и уходит вглубь квартиры. На кухне достаточно много хранения за счет высоты самой кухни. Также в кальянной организованы ящики и открытая полка. . . Свет и цвет . . Мы организовали общее освещение трековыми светильниками в гостиной зоне и накладными светильниками с точечным светом по всей квартире. За счет нашего решения с потолком, провода этих светильников будут на виду. В опуск потолка над гостиной мы встроили светильники. В спальной зоне также есть общий сценарий освещения между рейками на потолке. . За счет этих реек свет переходит из общего сценария на потолке в функциональный сценарий на стене. Эти освещения можно включать отдельно друг от друга. . . Функциональное освещение также реализовано подвесными светильниками, бра на кухне, подсветкой вокруг зеркала в санузле и светодиодной лентой над рабочей зоной кухни. . . В виде декоративного освещения используется подсветка из светодиодов в опуске потолка в гостиной. Такая же подсветка освещает нишу у балконного окна. . . Мы выполнили этот интерьер нейтральными тонами с некоторыми яркими акцентами. Например, плитка из практически черного графитового сланца сочетается с таким же темным оттенком в отделке стен. При этом, темных тонов не очень много, дабы сохранить светлый нейтральный фон интерьера. Также акценты выражены в деревянных рейках. . . Остальные яркие элементы мы специально сделали съемными, например, яркие подушки и постеры, некоторые элементы мебели. Это задумано для того, чтобы заказчик в дальнейшем мог убрать их и тем самым задать более спокойное настроение своему интерьеру. . . Текстиль . . Текстиль выражен чаще всего нейтральными серыми тонами. Они встречаются на диване в гостиной, шторах по всей квартире и сиденьях. Акцентируют на себя внимание декоративные подушки ярких желтых, синих, а также черных тонов. . . Итог . . Необходимо помнить, что потолок по всей квартире мы оставили таким, какой он есть сейчас. Поэтому могут быть проблемы с установкой вытяжки на кухне и в санузле. Мы вышли из положения опуском потолка конкретно над этими зонами. . . Также проблемы могут возникнуть с размещением инженерных систем из-за небольшого размера квартиры. Так как их необходимо было разместить в одном месте, то мы решили установить специальный шкафчик над унитазом специально для этой цели. . . Несмотря на решение оставить потолок неизменным, нужно будет выровнять и вычистить его от дефектов, чтобы он смотрелся аккуратно. . Сложно будет также сделать пол на балконе вровень с остальным пространством, потому что нам нужно будет вместить туда утеплитель. Но мы выяснили, что такое решение с легкостью реализуется благодаря новым материалам. . . Такой проект возможен к реализации за 3-4 месяца, но только если все заказные позиции будут готовы в срок и вовремя доставлены на объект. .
Другие фотографии в проекте
3 раза сохранено в статьи и альбомы идей:
Добавил(-а) в альбом: Идеи пользователя webuser_115432422
Добавил(-а) в альбом: Цвет
Добавил(-а) в альбом: Панели и выпуклости
Вопросы к фото 0
Задайте вопрос
Вам ответят эксперты. Пришлем уведомление, когда вам ответят




