logo
"Котельная.-Новая Базилика". Программа ревитализации квартальных котельных
Екатерина Ульянова

0

"Котельная.-Новая Базилика". 2 Программа ревитализации квартальных котельных

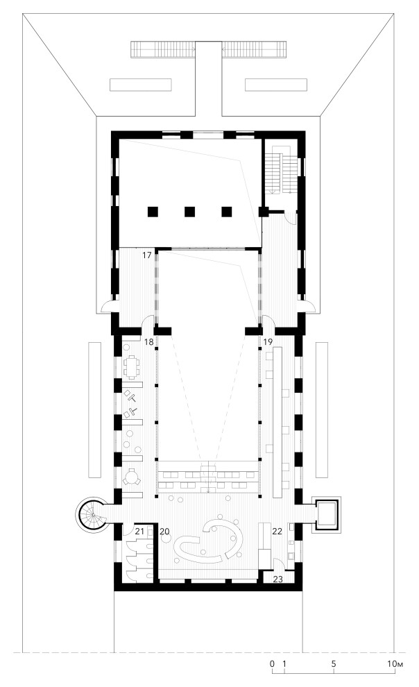
Когда-то котельные являлись энергетическим центром кварталов, построенных в 1958-60 годы. Затем, практически все тепловые станции были выведены из эксплуатации и выпали из жизни города. . Проект предлагает программу ревитализации типовых котельных в Москве. . Утилитарная функция - теплоснабжение домов эволюционирует в котельную на биотопливе. В обновленной котельной будут выращиваться цианобактерии, перерабатываться в топливо, с последующим использованием для нагрева воды. . Так как современное здание не может быть монофункциональным, к утилитарной функции добавляется социальная - комьюнити центр. Он станет центром общественной жизни, жителей и гостей квартала. . Архитектурным образом стала базилика, как архетип. Базилика зародилась в Древнем Риме в виде судебного здания, затем, христиане адаптировали базилику под храм. Проект логически развивает архетип базилики, превратив его в общественный центр. . Согласно общему принципу, в главном нефе расположен комьюнити центр, а в «алтаре» – котельная, в боковых нефах - помещения переработки биомассы. Весь объем окружен обходной галереей. Пространство внутреннего двора, является главной общественной площадью квартала. . Главной целью проекта было дать вторую жизнь старым типовым котельным, спроектировать пространство, которое станет сердцем квартала, местом где люди будут обмениваться душевным теплом. .

Другие фотографии в проекте

Вопросы к фото 0

Задайте вопрос

Вам ответят эксперты. Пришлем уведомление, когда вам ответят