
Архитекторы
5
·
10 отзывов
Концепция зонирования земельного участка и реконструкция зданий
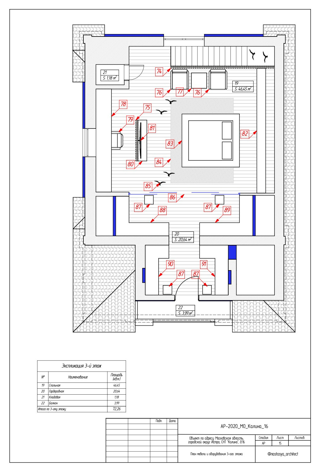
Общая площадь участка 16 соток. . Пожелания заказчика: . 1. Зона для шезлонгов; . 2. Зона со скамейками; . 3. Беседка; . 4. Большой гараж на 4 парковочных места; . 5. Много деревьев (туя) и небольших кустарников. . . Перепланировка и оформление 3-этажного коттеджа (2 этажа и мансарда) в стиле Лофт с элементами Индустриального стиля. . Общая площадь коттеджа 285 квадратных метра. . Подобрано более 90 предметов интерьера. . Пожелания заказчика: . 1 этаж . 1. Вместительная прихожая с гардеробом; . 2. Максимально большая гостиная со столовой; . 3. Отдельная кухня; . 4. Комфортный сан.узел с большой душевой кабиной; . 5. Помещения под хозяйственные нужды (прачечная). . . 2 этаж . 1. Мастер-спальная; . 2. Гостевая спальная; . 3. Максимально эффективно использовать площадь этажа. . . 3 этаж . 1. Большая гардеробная; . 2. Рабочее место; . 3. Место под ТВ; . 4. Изолировать мансарду (убрать второй свет); . 5. Максимально эффективно использовать площадь мансарды.
Другие фотографии в проекте
Вопросы к фото 0
Задайте вопрос
Вам ответят эксперты. Пришлем уведомление, когда вам ответят




