logo
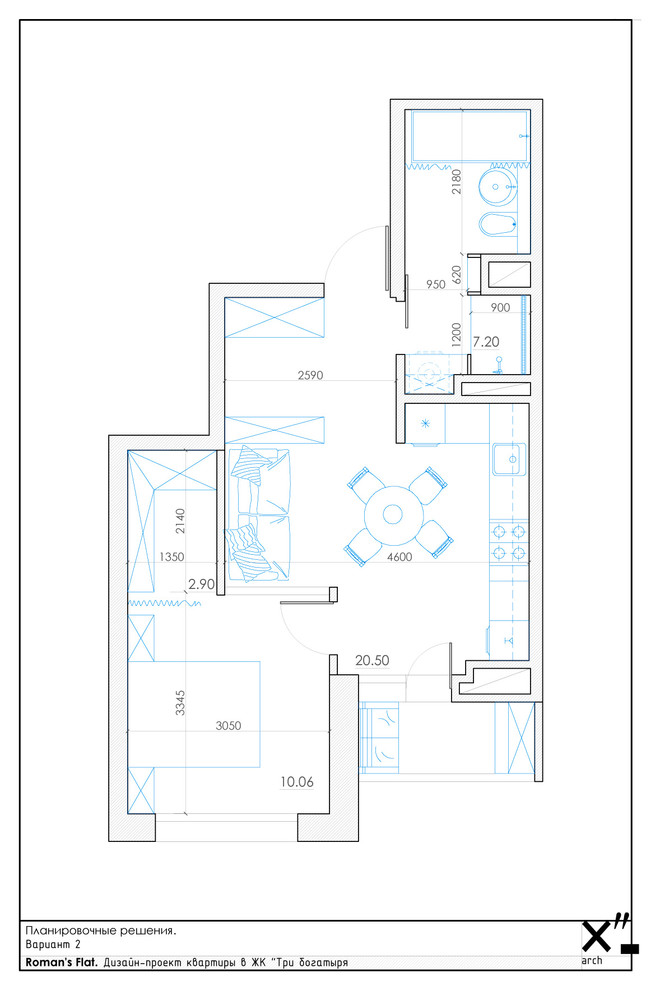
Концепция перепланировки однокомнатной квартиры

Другие фотографии в проекте Концепция перепланировки однокомнатной квартиры

Вопросы к фото 0

Задайте вопрос

Вам ответят эксперты. Пришлем уведомление, когда вам ответят

Краснодар, из однушки двушку, перепланировка однокомнатной квартиры, план