
Дизайнеры интерьера
5
·
10 отзывов
Конкурсная работа для МФК Ingria tower
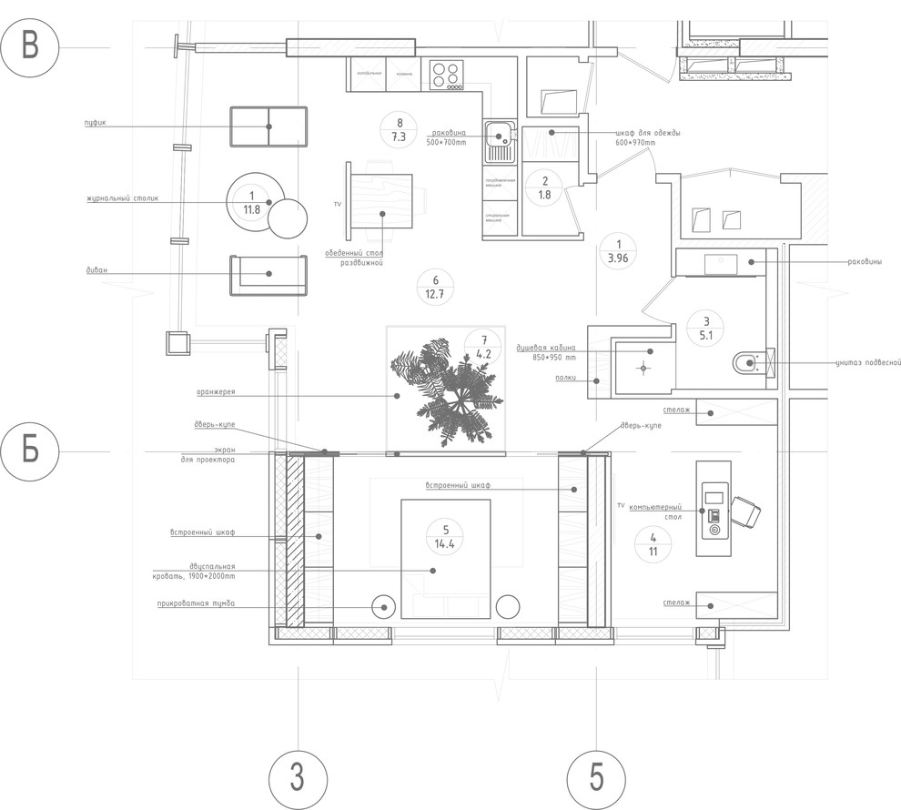
Студия интерьеров HoShi Дизайн-проект интерьера однокомнатной квартиры
Другие фотографии в проекте
Вопросы к фото 0
Задайте вопрос
Вам ответят эксперты. Пришлем уведомление, когда вам ответят




