
Дизайнеры интерьера
5
·
1 отзыв
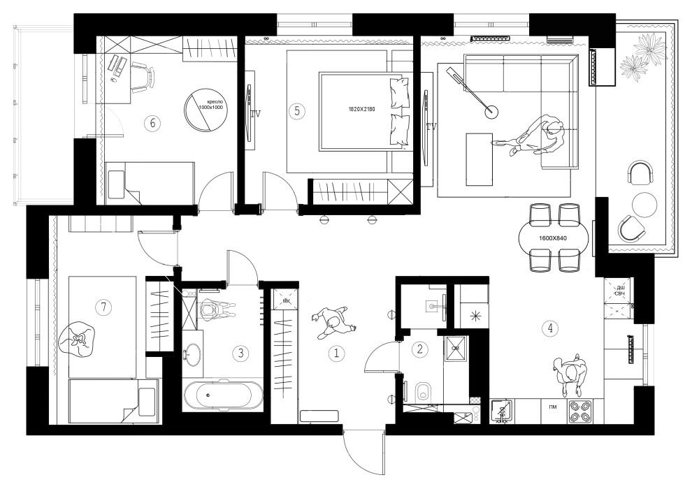
Комсомольский 104
Заказчики: Квартира для молодой семьи с двумя детьми. . . Задача была спроектировать зоны прихожей, кухни-гостиной и двух санузлов в бело-серых тонах. . . Решение: Мы объединили кухню с гостиной, демонтировав перегородку между ними, тем самым увеличили пространство, где можно собираться с семьей или друзьями, немного увеличили гостевой санузел за счет площади коридора, добавив душевую, что удобно, когда в доме 4 человека.
Другие фотографии в проекте
Вопросы к фото 0
Задайте вопрос
Вам ответят эксперты. Пришлем уведомление, когда вам ответят




