IMG_2360.PNG

Другие фотографии в проекте Колыбель кино

Вопросы к фото 0

Задайте вопрос

Вам ответят эксперты. Пришлем уведомление, когда вам ответят

Красногорск

Posuhova Margarita

Posuhova Margarita

Дизайнеры интерьера

Смотреть профиль

2

отзыва

5

Рейтинг

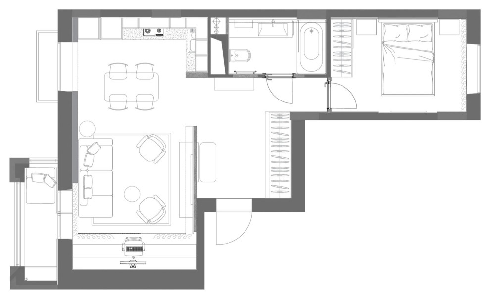
Колыбель кино

Главной задачей было создать стильный современный интерьер вне времени,который будет актуален и через несколько лет. Сдержанный по цвету, но с акцентом на теплый желтый (охру). Объединили кухню и гостиную. К общему пространству подключили прихожую, разделив эти зоны только небольшой перегородкой. Дальнюю комнату отвели под небольшую спальню. В гостиной выделили место под кабинет с большим столом, а приватности этой зоне добавили с помощью штор. Легкий тюль и более плотная портьера при необходимости отделяют рабочее пространство, но при этом оставляют ощущение воздуха и простора. Батареи спрятали за декоративной решеткой в цвет стен, а окно не стали завешивать шторами, чтобы оставить беспрепятственный обзор. Молдинги в цвет стен добавили интерьеру классических ноток и визуальной роскоши, но они еще и помогают вытянуть высоту потолка. В спальне участок стены в изголовье кровати сделали темным — прием, который вкупе с зеркалами также визуально увеличивает пространство. В целом, отделка построена на сочетании природных материалов, цветов и фактур. И эта комбинация остается вне времени и моды. Что касается мебели, много внимания уделили фактурам, как и в отделке. Но и практичности. . Контрастный интерьер получился словно наполненный игрой резких теней от яркого солнца в жарких странах. Дерево и картины добавляют тепла, а монохром отсылает к историичёрно-белого кино. Вдохновением послужила деятельность заказчиков, которые занимаются производством видеороликов и документальных фильмов. Творческой паре в таком чистом, графичном интерьере легче и удобнее работать дома. Также особенностью интерьера является возможность каждый день наблюдать из окна закаты, любоваться прекрасными картинами Анастасии Копытцевой и Андрея Новикова. . На реализацию проекта ушло всего четыре месяца. Технически было сложно изготовить столешницу длиной 3,3 метра. А так же пришлось поломать голову, как расположить большую рабочую зону, чтобы она не оказалась центром притяжения взглядов.

Вопросы к фото 0